Springe auf Hauptinhalt Springe auf Hauptmenü Springe auf SiteSearch
Montage von großen Fensterelementen

Irgendwann wird’s einfach zu schwer

_ Im Prüfalltag des ift Rosenheim ist deutlich erkennbar, dass die maximalen Elementgrößen neu entwickelter Fenster- und Beschlagsysteme stetig steigen. Hebeschiebetüren mit Abmessungen von 2,50 m Höhe und 5,00 m Breite stellten vor ca. 15 Jahren noch eine Besonderheit dar; heutzutage ist diese Größe nahezu Standard.

Die Montage der Fensterelemente wird zudem anspruchsvoller, da das flächenbezogene Elementgewicht moderner Fensterelemente durch größere Profilbautiefen und den Einsatz von 3-fach-Isolierglas mit funktionalen Verglasungen steigt. Gleichzeitig sinkt die Tragfähigkeit der modernen Wandsubstanz durch die Weiterentwicklung der Mauersteine hinsichtlich ihrer Wärmeleitfähigkeit.

Zudem sollen die Fensterelemente oft in der Dämmebene der Wand montiert werden, um eine optimale Dämmwirkung zu erzeugen. Dabei wird der Einsatz von Metallkonsolen/Laschen oder Montagezargen erforderlich, um die Lasten in die tragende Wand ableiten zu können.

Mit der Planung der Montage fängt alles an

Die Montage großflächiger Fenster ist eine Planungsaufgabe, die nicht der Monteur auf der Baustelle übernehmen kann. Neben dem schadensfreien Transport der Fensterelemente und dem Montagevorgang selbst sind auch geeignete Befestigungs- sowie Abdichtungsmittel unter Berücksichtigung vorhandener Belastungen auszuwählen.

Die Befestigung von Fenstern und Haustüren muss alle planmäßig einwirkenden Kräfte aus Winddruck und -sog, der Bedienung und ggf. Sonderfunktionen (z. B. Absturzsicherung, Einbruchhemmung) in die tragende Außenwand ableiten. Unzulässige Bewegungen der Fensterrahmen in der Wandöffnung können zur Beschädigung der inneren und äußeren Abdichtung führen; im Extremfall kann sich der Fensterrahmen sogar aus der Verankerung lösen. Bei der Wahl des Befestigungssystems ist folgendes zu berücksichtigen:

  • Bestimmung planmäßiger Belastungen (Horizontal-/Vertikallasten),
  • Einbaulage in der Außenwand (in der Wand-/Dämmebene),
  • Tragfähigkeit des Befestigungsgrundes (Material Außenwand, Sturz, Boden/Brüstung),
  • Fensterrahmenmaterial,
  • zulässige Randabstände der Befestigungsmittel.

Beim Fenstereinbau innerhalb der tragenden Wand können Vertikal- und Horizontallasten in Fensterebene über Tragklötze ins Mauerwerk eingeleitet werden. Werden die Fenster hingegen in der Dämmebene montiert, müssen die Befestigungssysteme diese Lasten aufnehmen und in die Außenwand übertragen. Die Hebelwirkung am Befestigungssystem nimmt dabei mit der Auskragung zu. Bei gemauerten Außenwänden dürfen im Brüstungsbereich durch das Befestigungssystem keine Zugspannungen rechtwinklig zu den Lagerfugen hervorgerufen werden, da sonst einzelne Steine aus dem Mauerwerksverband herauskippen könnten. Abhilfe schafft z. B. der Einsatz von „Montagezargen“.

Wohin mit den Lasten?

Bei großflächigen Fensterelementen kommt es an den Enden von Kopplungen, Pfosten und Riegeln zur Einleitung von Punktlasten, die bei der statischen Auslegung der Befestigungspunkte zwingend zu berücksichtigen sind. Die gleichmäßige Aufteilung der Windlasten auf alle Befestigungspunkte – bei umlaufend befestigten Fenstern ohne Unterteilung üblich – würde zu einer wesentlich zu niedrigen Lastaufteilung an den Befestigungspunkten an den Enden des Mittelpfostens führen. Das Beispiel in Bild 3 (Seite 21) zeigt dies anhand der Ermittlung der Windsoglast.

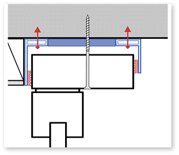
Weiter dürfen bei der Lastabtragung von großflächigen Fensterelementen keine Lasten aus dem Baukörper auf das Fensterelement übertragen werden. Besonders bei größeren Spannweiten (ab ca. 2 m Elementbreite) darf eine eventuelle Sturzabsenkung weder auf das Element einwirken noch zu einer irreversiblen Lageänderung der horizontalen Rahmenprofile führen. Falls eine Absenkung des Deckenbereichs über den großflächigen Elementen zu erwarten ist, muss die Befestigung nur als Horizontallasten übertragendes „1-wertiges“ Lager ausgeführt werden. Hier lässt sich z. B. das Prinzip einer „Bausenkzarge“ umsetzen, bei dem das obere Rahmenprofil in einem zusätzlichen Profil geführt wird (siehe Bild 4 auf S. 21).

Höhere Bewegungaufnahme berücksichtigen

Die Anschlussfugen der Fenster zum Baukörper müssen raumseitig umlaufend luftdicht abgedichtet werden, um Zugerscheinungen, Wärmeverluste oder Bauschäden durch Tauwasser zu verhindern. Der äußere Wetterschutz ist schlagregendicht auszuführen. Eventuell eingedrungene Feuchtigkeit muss kontrolliert nach außen abgeführt werden. Die Auswahl des Dichtsystems hängt von der zu erwartenden Belastung der Fuge ab. Für die fachgerechte Abdichtung der Anschlussfuge zwischen Fenster und Außenwand stehen praxisbewährte Dichtsysteme sowie neuere Entwicklungen zur Verfügung.

Die Abdichtungssysteme sollten einen Nachweis der Gebrauchstauglichkeit nach der ift-Richtlinie MO-01/1 besitzen. Bei der Auswahl des Dichtsystems für eine dauerhafte Abdichtung sind folgende Aspekte zu beachten:

  • Ausgleich auftretender Bewegungen und Belastungen,
  • Beschaffenheit der Fugenflanken und angrenzender Materialien,
  • Fugengeometrie,
  • vorhandene Toleranzen.

Nach den anerkannten Regeln der Technik stehen folgende Dichtsysteme für die Baukörperanschlussfugen an Fenstern und Haustüren zur Verfügung (bei der Verarbeitung jedes dieser Systeme sind materialbedingte Eigenheiten zu beachten):

  • spritzbare Fugendichtstoffe,
  • imprägnierte Fugendichtungsbänder aus Schaumkunststoff,
  • Multifunktionsdichtungsbänder,
  • Fugendichtungsfolien,
  • Anputzdichtleisten.

An großflächigen Fensterelementen sind Dichtsysteme mit höherer Bewegungsaufnahme erforderlich. Gründe sind die thermische Dilatation (Anm. d. Red.: Ausdehnung eines Körpers durch äußere Kräfte oder Wärme) der Rahmenprofile sowie eventuell vorhandene Bausenkungen im Decken- und Bodenbereich.

Zur Abdichtung der Baukörperanschlussfugen empfehlen sich Fugendichtungsfolien: Bei entsprechender schlaufenförmiger Verlegung der Folien oder beim Einsatz von dehnfähigen Folien können nahezu beliebig große Relativbewegungen in den Fugenbereichen ausgeglichen werden.

Schadensfall 1: Schiebeflügel bewegungsuntüchtig

Vom ift-Sachverständigenzentrum waren im Rahmen eines Gerichtsgutachtens die Funktionsstörungen an Hebeschiebetüren in einem Wohnhaus zu klären. Die Türen waren putzbündig in dem mit mehreren Architekturpreisen ausgezeichneten Objekt verbaut (siehe Bild 5, S. 21). Die Hebeschiebetürflügel ließen sich bereits nach einer Nutzungsdauer von 6 Monaten nur mit stark erhöhtem Kraftaufwand aufschieben bzw. wieder schließen. Nach ca. einem Jahr konnten zwei Elemente nicht mehr geöffnet werden; sowohl Schwellenprofil als auch oberes Rahmenprofil hatten sich mittig um ca. 6 mm nach unten durchgebogen. Die unteren Rahmeneckverbindungen wiesen zwischen den Alu-Schwellenprofilen und den Holzprofilen Spaltöffnungen von ca. 1,5 mm auf; die Öffnungsmechanik war deformiert.

Zur Findung der Schadensursache wurde eine Bauteilöffnung des Wärmedämmverbundsystems vorgenommen. Die Lastabtragung erfolgte über massive Stahlwinkel, die an der Stirnseite der Stahlbetondecken befestigt waren. Bei Vermessung der Auflagerwinkel zeigte sich, dass sich diese mit den Stahlbetonbauteilen gesetzt hatten und somit für die Absenkung im Boden- und Deckenbereich verantwortlich waren. Auf diese Schadensursache wird im Schadensfal 2 näher eingegangen. Weiterhin übergab der Bauherr eine Fotodokumentation der Elementmontage, unter anderem auch mehrere Fotos vom Krantransport (Bild 6). Die Elemente wurden mit verglasten Flügeln an den seitlichen Enden des oberen Rahmenprofils am Kran angeschlagen. Aufgrund der hohen Flügelgewichte von jeweils ca. 400 kg wurden die Beschläge und Rahmeneckverbindungen überlastet.

Sofern die Fensterelemente mit bereits verglasten Flügeln transportiert werden sollen, müssen temporäre Zugdiagonalen und ggf. eine Verstärkung des oberen Profils montiert werden. Die Bilder 6 und 7 zeigen zwei mögliche Lösungen, bei denen die Last aus den Fensterflügeln nicht über Rahmenecken und Beschläge, sondern direkt in die Aufhängungspunkte eingeleitet wird.

Schadensfall 2: Boden und Sturzabsenkung

In einem weiteren Schadensfall wurden Bedienungsstörungen an sechs Faltanlagen angezeigt. Die Faltanlagen waren im Zuge einer Dachaufstockung in Dachgauben montiert worden und seit ca. einem halben Jahr in Nutzung (Bild 8). Beim Ortstermin wurde festgestellt, dass an sämtlichen Faltanlagen ein direkter Kontakt zwischen den waagerechten Blendrahmen- und den Flügelprofilen vorlag. Die Kontrolle der waagerechten Profile ergab, dass sowohl eine mittige Absenkung des Sturzes als auch die seitliche Absenkung der Schwelle („Kissenform“) hierfür verantwortlich waren. Die nach der Fenstermontage aufgebrachte Dachbegrünung mit hohem Eigengewicht hatte zu dieser Lageänderung der Dach- und Deckenkonstruktion geführt.

Zur Mängelbeseitigung sind die Fensterelemente auszubauen und unter Berücksichtigung der Baubewegungen/Bausenkungen neu zu montieren.

Spezialwissen ist gefragt

Große Fensterelemente bieten wesentlichen Mehrwert für eine Immobilie: Einfall von Tageslicht, die Verbindung von Innenraum und Umgebung gehören zu den Hauptgründen für den Einsatz solcher Elemente. Die ausführenden Montagebetriebe müssen zusätzlich zu den Grundkenntnissen einer fachgerechten Montage die speziellen Montageeigenschaften von großflächigen Fensterelementen kennen.

Bei der Montageplanung sind Bausenkungen im Boden- und Sturzbereich zu berücksichtigen. Weiterhin müssen Punktlasten an den Enden der Haupttragglieder (Pfosten, Riegel, Kopplungen) bei der Auswahl der Befestigungsmittel beachtet werden.—

Autor

Dipl.-Ing. (FH) Martin Heßler ist seit 2005 Mitarbeiter am ift Rosenheim. Er arbeitet als Projektingenieur im Bereich Montage und Baukörperanschlüsse. Davor war er lange Jahre als Gutachter tätig; ca. 30 Prozent der Schadensfälle betrafen den Montagebereich.