Springe auf Hauptinhalt Springe auf Hauptmenü Springe auf SiteSearch
DIN 18008

DIN 18008 - Fragen/Antworten zu Laufwegen und Risikoeinschätzungen

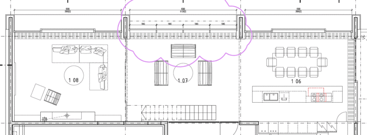
Uns erreichte folgende Frage zu den so genannten Laufwegen:  "Sind als Laufwege nur Gänge gemeint oder gelten hier auch die Bereiche vom Weg der Küche zum Wohnzimmer bei einem offenen Grundriss wie unten dargestellt?"

Ralf Spiekers: "Die Frage ist relativ leicht zu beantworten: Laufwege sind nach dem Verständnis des Verbändepapiers alle Wege, die dem Durchqueren des Gebäudes bzw. der Wohneinheit dienen. Dies ist in Abschnitt 3 auch klar formuliert. Von daher laufe ich auf die hier skizzierten Fenster nicht zu. Sie sind also außerhalb der Verbindung von Küche und Wohnzimmer."

Frage zu den Balkontüren mit geringer Strecke vor oder hinter der Verglasung : "Was ist eine geringe Strecke? Wenn vor der Türe 100 cm Platz sind, ist das dann noch eine geringe Strecke? Wenn vor der Türe ein 15 cm hohes Podest ist, wird die Strecke dann ab dort gemessen?"
Ralf Spiekers: "Das Verbändepapier ist sicher auch ein Konsenspapier. Und die gewählte Formulierung ist hinreichend ungenau, um sich einigen zu können. Die konkrete Frage, ob ein guter Meter eine geringe Strecke ist, ist allgemein sicher zu bejahen. Auch ein wenig tiefer Balkon ist so einzustufen. Zur weiterführenden Frage, was mit einem Podest ist, verweise ich auf Abschnitt 6. Hier ist das Podest als eine Schutzmaßnahme benannt. In der Tat bedeutet ein Podest, dass - wie bei geringen Strecken - vor den Verglasungen die Anlaufenergie reduziert ist, so die Meinung der Teilnehmer des Verbändepapiers.

Eine Frage zu Punkt 5.2. im Verbändepapier: "Ist bei 3-fach Isolierglas mit Außenseite die Witterungsseite oder die beiden äußeren Scheiben der Isolierglaseinheit gemeint?"
Ralf Spiekers: "Hier verweise ich auf die Laufwegethematik. Eine solche Verglasung ist außen erwartungsgemäß in Laufrichtung. Eine Beurteilung des Innenbereiches erfolgt entsprechend.

Frage : "Im welchen Abstand zu einer Türe gilt ein Bereich noch als Zugangs- und Eingangsbereich - wenn man die dargestellte Skizze als Beispiel nimmt? Die Konstruktion besteht aus einem Fixfenster, dann kommt eine Haustüre und zum Schluss nochmal drei Fixfenster. Müssen dann nur die beiden Fixfenster neben der Haustüre mit Sicherheitsglas ausgeführt werden oder zählen die anderen beiden Fixfenster auch noch zum Eingangsbereich?"
Ralf Spiekers: "Hier kann ich nur philosophisch antworten: Es kommt drauf an. Die vorgelegte Skizze sagt nichts darüber aus, wie der Bereich neben oder vor der Tür gestaltet ist. Dies wird entscheidend sein."

Dazu wollte Ralf Spiekers noch zu dem möglichen Einwand sagen, dass das Verbändepapier nun mehr als frühere Anforderungen bzw. zur jetzigen Norm (Teil 1) fordert . "Das Ergebnis vom Abschnitt 5.2 des Verbändepapiers lautet: Für den Fall der höheren Eintrittswahrscheinlichkeit von Glasbruch ist das vorliegende Risiko ggf. unter Berücksichtigung bereits vorhandener Schutzmaßnahmen genauer zu beurteilen. Hier ist 'beurteilen' formuliert, nicht 'es braucht Glas mit bruchsicherem Verhalten'."

Frage zu Punkt 6 und der Liste beispielhafter Schutzmaßnahmen: " Nutzerkreis einweisen, bzw. einschränken: Wäre es demnach bei einem Einfamilienhaus ausreichend, die Bewohner schriftlich darauf hin zuweisen, dass man sich an Glas verletzen kann?" 
Ralf Spiekers: "Wenn wir über 'Einweisung' reden, dann verbinden Sie das gleich mit schriftlich. Also ich würde mich weigern, in meinem Einfamilienhaus eine Hausordnung auszuhängen oder selbige abzeichnen zu lassen. Wenn ich Sie zu mir einlade, dann gehe ich davon aus, dass sich mein Gegenüber benehmen kann und sich entsprechend verhält. Das ist bei einem bekannten Personenkreis anders als bei einem offenen Kreis.

Frage : "Was ist wenn dann doch was passiert? Könnte ein Sachverständiger vor Gericht die Aussage treffen: "Die Kundschaft war nicht fachkundig genug um überhaupt das tatsächliche Gefahrenpotenzial ab zu schätzen. Hätte man Sicherheitsglas verwendet wäre das nicht passiert."

Ralf Spiekers : "Es kann keine absolute Sicherheit geben; ein gewisses Risiko wird zurückbleiben. In dem Verbändepapier ist das das Restrisiko. Deshalb kann ein Erzeugnis nur relativ sicher sein. Das ist auch sinngemäß in der DIN 820-120:Leitfaden für die Aufnahme von Sicherheitsaspekten formuliert. Ein wesentlicher Satz aus dem Verbändepapier lautet: Die „Verkehrssicherheit ist gegeben, wenn nach der allgemeinen Erfahrung in überschaubarer Zukunft kein Eintritt eines Schadens zu erwarten ist.“ Von daher ist es unglücklich, immer wieder mit einem Unfall zu argumentieren. Ich sag es mal mit einem Beispiel: Wenn ich heute Morgen nicht Auto gefahren wäre, wäre es auch nicht zum Blechschaden gekommen. Das ist richtig. Übrigens, wenn ich den Panzer genommen hätte, wäre der Blechschaden bei mir auch nicht eingetreten. Das Verbändepapier beschreibt ein vertretbares Risiko, das in einem bestimmten Zusammenhang nach den gültigen Wertvorstellungen der Gesellschaft akzeptiert wird, nicht Unfälle. Ich möchte noch anmerken: eine bestimmungsgemäße Benutzung der Sache wird vorausgesetzt." (dm)

Hier geht es zu dem Verbände-Papier: 

Beim Bundesverband Flachglas   

Beim Verband Fenster + Fassade

Tags