Springe auf Hauptinhalt Springe auf Hauptmenü Springe auf SiteSearch
Gutmann

Filigranes Design für echte Schwergewichte

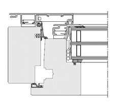
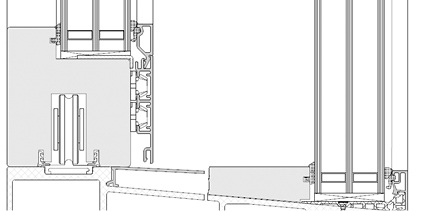
Die Holz-Aluminium Hebeschiebetür-Lösung von Gutmann bietet maximale Glasflächen bei minimaler Rahmenansicht. Durch die konsequente Reduzierung aller Ansichtsbreiten ergibt sich eine deutlich vergrößerte Glasfläche. Mehr Glas – mehr Vorteile: Denn mehr Glas kommt dem thermischen Verhalten der Hebeschiebetür zugute und bietet ein Maximum an Transparenz und Komfort.

Die Verwendung der Gutmann Mira contour Glasleiste ermöglicht das Verglasen von außen. Das stellt vor allem für die ausführenden Unternehmen einen wesentlichen Vorteil dar. Zudem wird ein Austausch der Glasscheiben bei möglicher Beschädigung erheblich vereinfacht.

Aufgrund der schmalen Holz- und Aluminiumquerschnitte wird im Bereich der Fixverglasung ein bodentiefer und somit nahezu freier Ausblick im Schwellenbereich nach außen ermöglicht. Die bodentiefe Führung der Hebeschiebetür bietet zudem einen flachen Durchgang und erfüllt die Anforderungen an barrierefreies Wohnen.

Rahmenintegrierte Absturzsicherung: Mit der rahmenintegrierten Absturzsicherung FPS.I wurde eine architektonisch anspruchsvolle Lösung für raumhohe Fenstertüren entwickelt und bauaufsichtlich geprüft. Alle funktionalen Bauteile sind durch die integrierte Bauweise mit der Aluschale abgedeckt. Die Sicherheitsglasscheibe wird lediglich oben und unten durch einen filigranen Kantenschutz begrenzt. So vereint dieses innovative Produkt Transparenz und Sicherheit in einem eleganten, zeitlosen Design und ermöglicht somit den Verzicht auf sperrige Zusatz-/Sicherheitskonstruktionen.

www.gutmann-group.com |Halle 7, Stand 34

Jetzt weiterlesen und profitieren.

+ Glaswelt E-Paper-Ausgabe – jeden Monat neu
+ Kostenfreien Zugang zu unserem Online-Archiv
+ Fokus GW: Sonderhefte (PDF)
+ Webinare und Veranstaltungen mit Rabatten
uvm.

Premium Mitgliedschaft

2 Monate kostenlos testen