Springe auf Hauptinhalt Springe auf Hauptmenü Springe auf SiteSearch
Fenstermontage in Ziegelmauerwerk

Kann hier noch etwas halten?

_ Die gestiegenen und weiter steigenden Anforderungen an den baulichen Wärmeschutz haben zu einer Reduzierung der Wärmeleitfähigkeit von Ziegelmauerwerk geführt. Durch die Erhöhung der Lochanteile und Lochreihenzahl, geringeren Stegdicken, geringere Scherbenrohdichten sowie mit Dämmstoff gefüllte Ziegel können Wärmeleitfähigkeiten von unter 0,10 W/(m*K) erreicht werden. Mit der entsprechenden Verbesserung der wärmetechnischen Eigenschaften ging jedoch eine Reduzierung der mechanischen Festigkeiten einher.

Die Befestigung von Fenstern wird mit herkömmlichen Methoden deshalb immer schwieriger. Gleichzeitig hat das Gewicht von transparenten Bauelementen erheblich zugenommen (3-fach-Glas, größere Glasflächen sowie die Anforderungen an den Komfort (Schallschutz) und an die Sicherheit (Einbruchhemmung)). Zudem rückt durch die architektonischen Anforderungen das Bauelement in der Fensterlaibung nach außen bzw. wird bei außen liegender Wärmedämmung vor das Mauerwerk gesetzt, was zu einer schwierigeren Befestigungssituation führt und den Einsatz von lastabtragenden Hilfsmitteln (Konsolen) notwendig macht.

All dies führt dazu, dass die Befestigung in hochwärmedämmendem Ziegelmauerwerk mit herkömmlichen Methoden immer schwieriger wird und allgemein anerkannte Befestigungslösungen fehlen. Daher hat das ift das Forschungsvorhaben „Fenstermontage in hochwärmedämmendem Ziegelmauerwerk“ durchgeführt (gefördert durch die Forschungsinitiative Zukunft Bau sowie die Arbeitsgemeinschaft Mauerziegel e. V. und Würth sowie durch kostenlose Prüfelemente der Firmen Kneer-Südfenster, heroal sowie Veka).

Das wurde ausprobiert

Im Forschungsprojekt wurden Untersuchungen an „Großkammerziegeln“ (Hohlräume mit Dämmstoff gefüllt) sowie „filigranen Ziegelsteine“ (mit/ohne Füllung) durchgeführt. Dabei wurden auch wichtige Grundlagen für die auftretenden Lasten und Lasteinleitungen erarbeitet, da diese eine direkte Auswirkung auf die Tragfähigkeit des Gesamtsystems, die Befestigungsmittel und die Ziegelwand haben.

Diese Lasten können durch das Eigengewicht und durch Fremdeinwirkungen (Belastung durch Personen und Wind) hervorgerufen werden. Wichtig ist dabei die Wirkungsrichtung der resultierenden Auflagerkräfte. Sie können sowohl in Fensterebene als auch rechtwinklig zur Fensterebene auftreten.

Um die Analyse der auf das Fenster bzw. die Befestigungspunkte einwirkenden Lasten zu vereinfachen, wurde als baupraktische Annahmen ein typisches Fenster definiert (Isolierglas mit 30 kg/m², Profilgewicht 5,5 kg/lfm, vertikale Nutzlast 0 und 600 N/Klasse 3, Windlast B3 => 1,11 kN/m², Position Befestigungsmittel gemäß RAL Montageleitfaden). Neben einer Analyse der an den Befestigungspunkten auftretenden Lasten, wurden die Tragfähigkeiten der Befestigungsmittel an unterschiedlichen Steinen durch Kleinteilversuche ermittelt. Dies erfolgte sowohl für Querzug als auch für Befestigungen, bei denen das Befestigungsmittel auf Biegung beansprucht wird. Darauf aufbauend wurden an kompletten Bauteilen, bestehend aus gemauertem Ziegelverband mit eingebautem Fenster, Untersuchungen zur Tragfähigkeit und Dauerhaftigkeit durchgeführt. Hierbei wurden auch alternative Konzepte zur Befestigung der hochbelasteten Fensterbeschläge durchgeführt.

Die durchgeführten Bauteilversuche zeigten, dass das theoretische (vereinfachte) Bemessungsmodell für die baupraktische Anwendung eine ausreichende Übereinstimmung aufweist. Allerdings ergaben sich beim Kleinteilversuch deutlich größere Verschiebungen und Verformungen des „Befestigungspunktes“ als im Bauteilversuch, sodass Neuentwicklungen auch mittels Bauteilversuchen geprüft werden sollten.

Ergebnisse und Empfehlungen

Aus den umfangreichen Untersuchungen konnten Grundlagen für die Berechnung erarbeitet werden, die direkt in die Programmierung des ift-Montageplaners einfließen. Denn die Berechnung kann am besten durch eine Software erfolgen. Darüber hinaus können aber auch wichtige Empfehlungen für die konstruktive Ausbildung der Befestigung und des Baukörperanschlusses abgeleitet werden:

  • Windlast – für eine typische Fenstergröße (ca. 1,2 m x 1,4 m) beträgt die Last aufgrund von Windeinwirkung und umlaufender Befestigung ca. 0,4 kN und kann mit handelsüblichen Befestigungsmitteln abgetragen werden. Bei 2-seitiger Befestigung erhöht sich der Wert jedoch auf ca. 0,6 kN. Für eine Fenstertür (ca. 1,3 m x 2,2 m) liegt die Last aufgrund von Windeinwirkung und bei umlaufender Befestigung bei ca. 0,5 kN; bei nur 2-seitiger Befestigung erhöht sich der Wert auf ca. 0,7 kN. Prinzipiell kann die durch das Befestigungsmittel abzutragende Last aufgrund von Windeinwirkung durch die Verwendung von mehreren Befestigungspunkten reduziert werden.
  • Eigengewicht – die Lasten des Flügels sind bei gleicher Elementfläche (B x H) für stehende Formate geringer als für liegende Formate. Für ein Fenster (ca. 1,2 m x 1,4 m) liegt die abzutragende Last aufgrund von Eigengewicht und umlaufender Befestigung bei ca. 0,5 kN (ohne vertikale Nutzlast) und ist damit etwas höher als die Last, die „nur“ durch eine Windbelastung entstehen würde. Für eine Fenstertür (Abmessung ca. 1,3 m x 2,2 m) liegt die Last aufgrund des Eigengewichts ebenfalls bei ca. 0,5 kN (ohne Zusatzlast).
  • Vertikale Nutzlast P – bei einer zusätzlich zu berücksichtigenden Last von 600 N liegen für alle Abmessungen die durch das Eigengewicht und Nutzlast verursachte Last signifikant höher, als die Last durch Windeinwirkung. Dies gilt sowohl für eine umlaufende und für eine 2-seitige Befestigung des Fensters. Hierdurch ergibt sich, dass sich der relevante Lastfall meistens aus dem Eigengewicht des Flügels und der Nutzlast P = 600 N ergibt.
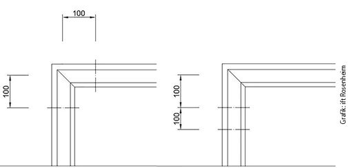
  • Befestigung Fensterlager – Die Versuche zeigten, dass für die Bemessung der Befestigungspunkte in Nähe des Eck- bzw. Scherenlagers die Last relevant ist, die sich durch einen auf 90° geöffneten Flügel ergibt. Diese Kräfte können schon bei typischen Fensterformaten von Standard-Befestigungspunkten nicht mehr aufgenommen werden. Untersuchungen zeigten, dass durch eine „Gruppenbefestigung“ diese Lasten auf mehrere Befestigungspunkte aufgeteilt werden können, beispielsweise durch eine „Über-Eck Befestigung“ beim Scherenlager. Die Last am Ecklager kann auf zwei Befestigungspunkte aufgeteilt werden, die direkt oberhalb bzw. unterhalb liegen. Ebenso kann eine Lastaufteilung erfolgen, wenn am oberen Scherenlager in einem Abstand von ca. 100 mm zum „Standardbefestigungspunkt“ ein zweiter Befestigungspunkt gesetzt wird, der die Last auf den „Standardbefestigungspunkt“ auf ca. 70% reduziert.
  • Verformung und Gebrauchstauglichkeit – bei der Bemessung des Befestigungspunktes ist der Grenzzustand der Tragfähigkeit und der Gebrauchstauglichkeit zu berücksichtigen, der sich nach ift-Richtlinie MO-02/1 für eine maximale Verformung der Befestigungsmittel unter Last von 3 mm definiert. Dies stellt die Dauerhaftigkeit des Anschlusses sicher (innere/äußere Abdichtung zwischen Fenster und Mauerwerk). Ist die Kraft für die Verformung von 3 mm größer als die Kraft im Befestigungsgrund, so erfolgt die Bemessung anhand der Verformung. Die Verformung hängt wesentlich von der freien Länge des Befestigungsmittels ab, d. h. von der Breite der Einbaufuge. Es ist daher wichtig bei der Bemessung auch die Breite der Einbaufuge zu berücksichtigen und möglichst zu reduzieren (Fugenbreite < 15 mm oder Hinterfütterung).

Praktische Berechnung mit ift-Online Tool

Um die Berechnung der Lasten und die daraus folgenden Vorgaben für die Befestigungsmittel für die Baupraxis zu erleichtern, wurden die erarbeiteten Berechnungsverfahren in den kostenlosen ift-Montageplaner integriert. Damit kann der Montagebetrieb die Lasten und Auflagerkräfte an den Befestigungspunkten einfach ermitteln und die geeigneten Befestigungsmittel in Abstimmung mit dem Hersteller festlegen. Die Befestigung in hochwärmedämmendem Ziegelmauerwerk ist im Sonderfall 1 enthalten.

Die Daten werden in einer gesonderten Eingabemaske abgefragt (Außenabmessung Fenster, Rahmenwerkstoff, Fensteraufteilung, Gesamtglasdicke, geplante Anzahl der Befestigungspunkte, Bemessungswindlast, vertikale Nutzlast P). Nach Eingabe der Daten werden die Auflagerkräfte berechnet und in einer Ergebnisübersicht dargestellt, die zu Dokumentationszwecken auch heruntergeladen werden kann. Als Ergebnis wird das Maximum aus beiden Lastfällen angegeben (Wind bzw. geöffneter Flügel).

Fazit

Die fachgerechte Befestigung sollte ernst genommen werden und die Montagebetriebe müssen sich auf die veränderten Einbaubedingungen einstellen. Die bislang bekannten allgemeinen Regeln der Technik (a.R.d.T.) mit standardisierten Befestigungsabständen reichen für die Verankerung in hochwärmedämmendem Ziegelmauerwerk nicht mehr aus, um eine fachgerechte, dauerhafte Befestigung zu gewährleisten.

Der kostenlose ift-Montageplaner ermöglicht hierbei eine einfache Ermittlung der Kräfte als Grundlage zur Auswahl der Befestigungsmittel und -abstände. Bei besonderen Anforderungen (Einbruchhemmung, Absturzsicherung) sollte bereits in der Angebotsphase die grundsätzliche Machbarkeit mit dem Systemgeber und dem Hersteller von Befestigungsmitteln geklärt werden.—

Die Autoren

Martin Heßler ist im ift als Projektingenieur für den Bereich Montage und Baukörperanschlüsse tätig. Davor war er lange Jahre als Gutachter tätig und kennt daher die Probleme und Abläufe auf der Baustelle genau. Als Referent und Autor gibt er seine Erfahrung an die Branche weiter.

Wolfgang Jehl ist im ift als Produktmanager für den Bereich äußere Abschlüsse, Montage und Baukörperanschlüsse tätig. Als Hauptverfasser des Montageleitfadens und diverser Richtlinien sowie als langjähriger Gutachter gilt er als führender Experte auf diesem Gebiet. Als Referent und Autor sowie in verschiedenen Normungsgremien gibt er seine Erfahrung an die Branche weiter.

Norbert Sack ist Leiter der Abteilung Forschung und Entwicklung und seit 1995 am ift tätig. Er arbeitet in verschiedenen nationalen und internationalen Normenausschüssen und Sachverständigengremien mit und ist Lehrbeauftragter an der Hochschule Rosenheim.

Jetzt weiterlesen und profitieren.

+ Glaswelt E-Paper-Ausgabe – jeden Monat neu
+ Kostenfreien Zugang zu unserem Online-Archiv
+ Fokus GW: Sonderhefte (PDF)
+ Webinare und Veranstaltungen mit Rabatten
uvm.

Premium Mitgliedschaft

2 Monate kostenlos testen

Tags