Springe auf Hauptinhalt Springe auf Hauptmenü Springe auf SiteSearch
nullschwelle

Effiziente Barrierefreiheit

Die Grundvoraussetzung zur Erfüllung der bauordnungsrechtlichen Anforderungen des barrierefreien Bauens ist zweifelsfrei ein schwellenfreier Zugang zum Gebäude. Für eine effiziente Umsetzung dieser Anforderung hat die Grundmeier KG (GKG) das bodenebene Türschwellensystem Combi Plan entwickelt, welches einerseits den barrierefreien Anforderungen wie auch den baukonstruktiven, bauphysikalischen und wirtschaftlichen Erfordernissen vollumfänglich gerecht wird.

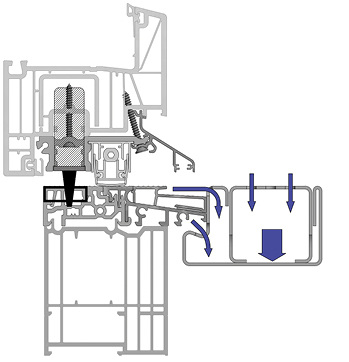
Dieses bodenebene Türschwellensystem weist keinerlei Anschlag oder Erhöhung im Bereich der Türleibung bzw. vor oder hinter dem Türelement auf. Sowohl die Oberkante-Fertigfußboden innen als auch die Oberkante-Fertigfußboden außen werden exakt auf dem gleichen Höheniveau angeordnet. Für die Dichtheit des Systems wird eine im Türflügel lagernde absenkbare Bodendichtung eingesetzt. Diese senkt sich erst im Schließmoment des Türflügels mechanisch ab und verzichtet somit vollständig auf Schleifdichtungen.

Das bodenebene Türschwellensystem biete mit dem Verriegelungssystem „Multi Zero“ vom Beschlagshaus Maco die uneingeschränkte Möglichkeit zur Dreh-Kipp-Funktion, verbunden mit einem besonderen Maß an Sicherheit bei der Einbruchhemmung (RC 2). Ein Hakenverschluss ist in die Unterseite des Türflügels integriert und greift beim Schließvorgang in das in der bodenebenen Schwelle positionierte Schließteil ein.

Die Entwässerung des Türschwellensystems erfolgt über eine optimierte, vorgelagerte Dränagerinne. Neben einer Systemrinne aus Edelstahl, die auf die Entwässerung des Türelements ausgelegt ist, besteht die Möglichkeit systemspezifische Dränagerinnen mit individuellen Abmessungen und unterschiedlichem Design und Material einzusetzen. Damit sei es möglich, eine für die entsprechende Bauaufgabe sowohl funktionale als auch kostenoptimierte Lösung zu finden, heißt es.

Der Herstellungsprozess erfolgt in bekannten Methoden: Durch ergänzende Bauteile werden die vorhandenen Türschwellen der Fa. Grundmeier KG (GKG), die bisher bereits in 20 mm hohe Ausführungen eingesetzt wurden, zu einem absolut barrierefreien und bodenebenen System ausgebaut. Viele Komponenten des Systems sind beim Einsatz vom 20 mm oder 0 mm hohen Türschwellen identisch.

www.grundmeierkg.de