Springe auf Hauptinhalt Springe auf Hauptmenü Springe auf SiteSearch

Zum Musik hören in den lichtdurchfluteten Keller

_ Eine ganz besondere Villa baute sich der Kulturmanager Peter Paul Kainrath in seiner Heimat Südtirol. Entworfen von seinem Vater Rainer verbindet das Haus in St. Michael-Eppan zeitgenössischen Stil mit traditioneller Architektur, großzügige Räumlichkeiten mit reduzierten Außenmaßen und zahlreiche Verglasungen mit hoher Energieeffizienz.

Die Idee eines großvolumigen und lichtdurchfluteten Gebäudes entstand, das genügend Platz und ein modernes Ambiente auch für Kainraths umfangreiche Musik- und Büchersammlung bot. Allerdings zog die idyllische Lage des Elternhauses, an dem der Neubau angrenzen sollte, verschärfte Beschränkungsvorgaben nach sich. Architekt Rainer Kainrath stellte sich dieser besonderen Herausforderung und fand dafür eine gleichermaßen interessante wie elegante Lösung.

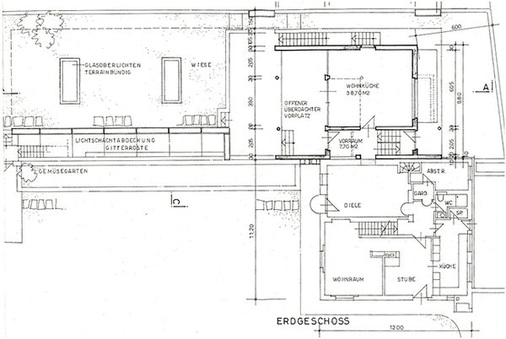
Da das bereits bestehende Gebäude am Hang lag, nutzte er die Möglichkeit, den Neubau zum Teil in den Hang hineinzusetzen. So ließen sich Tiefgeschoss, zwei Vollgeschosse und ein Dachgeschoss ohne Versatz zu den Ebenen des Altbaus unterbringen. Der besondere Clou des Entwurfs zeigt sich im Tiefgeschoss: Dort verbirgt sich, von außen völlig unsichtbar, der über 150 m² große Musikraum. Dieser ist durch einen Flur mit dem Keller des mehrgeschossigen Gebäudeteils verbunden und verlängert die tiefe Ebene um über 20 m. Die Decke des Raumes ist als begrüntes und begehbares Flachdach mit mehreren Oberlichtern konzipiert, das sich komplett in die Gartenanlage integriert.

Um durch den Bau in den Hang kein Tageslicht zu verlieren, setzte der Architekt sowohl am Musikraum als auch am mehrgeschossigen Gebäudeteil breite Lichtschächte und plante großflächige Verglasungen ein. Im weit auskragenden Dach, das einer Terrasse Wetterschutz bietet, befindet sich ebenfalls ein verglaster 15 m2 großer Einschnitt, der bis zur Hauswand reicht. Diese Verglasung sorgt nicht nur auf dem Außensitzplatz für angenehmes Tageslicht, sondern lässt zusätzlich Licht in alle drei oberirdischen Ebenen des Neubaus.

Um durch den hohen Glasanteil die Energiebilanz des Hauses nicht zu verschlechtern, legte der Bauherr besonderen Wert auf sehr gute energetische Eigenschaften der geplanten Verglasungssysteme. Für diese Anforderungen zeigte sich das Aluminiumprogramm FIN-Project des Südtiroler Fensterherstellers Finstral wie geschaffen. „Das Programm überzeugt sowohl durch einen zeitlosen und sehr eleganten Zuschnitt der Rahmen und hervorragende Werte im Energiebereich als auch durch ein umfangreiches Zubehörprogramm wie zum Beispiel Griffe und Abschattungen“, sagt Kainrath.

So konnte Finstral die verschiedensten Funktionen von Festverglasungen über rahmenlose und kippbare Fenster sowie Balkontüren bis zu einer vierfach verglasten Haustür liefern.

Der neue Systemaufbau, bestehend aus einem Mehrkammer-Kunststoffprofil mit Mitteldichtung, das innen und außen mit Aluminiumprofilen fest verbunden wird, zeichnet sich durch eine extrem schmale Profilierung bei gleichzeitig guter Wärmedämmung (bis zu Uw = 0,83 W/m2K) sowie hoher Luft- und Schlagregendichtheit aus. Alle Programmelemente sind ästhetisch optimal aufeinander abgestimmt und damit prädestiniert für eine anspruchsvolle Kundschaft und den aluminiumorientierten Objektbau. —

https://www.finstral.com/de/home/1-0.html