_ Anforderungen an und Prüfungen von Duschabtrennungen sind in Europa durch die EN-Norm 14428 geregelt. Mit dieser Norm haben das Europäische Technische Komitee „Sanitärausstattungsgegenstände“ und der deutsche Normenausschuss „Wasserwesen“ ein Regelwerk geschaffen, mit dem vorgefertigte Massenprodukte favorisiert werden und das dazu geeignet ist, Leistungen, die nur das Glaserhandwerk erbringen kann, vom Markt fernzuhalten und zu diskriminieren.
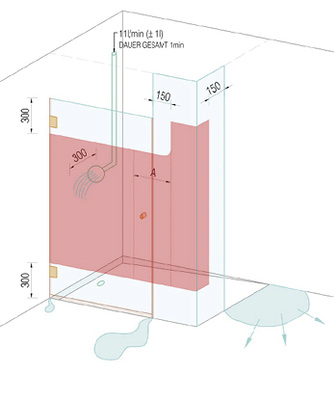
Unter anderem sind Duschabtrennungen hinsichtlich Spritzwasserdichtheit aufwendig zu prüfen. Neben einer Spritzwasserprüfung A, bei der die Glasflächen, einschließlich der Anschlussbereiche, eine Minute aus 30 cm Entfernung im rechten Winkel besprüht werden müssen, ist die Prüfung B äußerst fragwürdig. Im Nachbau wurde festgestellt, dass die Glasfläche selbst nicht einmal nass wird.
Will diese Norm Maßduschen verhindern?
Allein die zuvor beschriebenen Prüfungen sind für Einzelanfertigungen, die eigens an die örtliche Umgebung angepasst werden, nur unter enormem finanziellen und zeitlichen Aufwand leistbar. Damit werden zur EN 14428 konforme Duschabtrennungen in Einzelanfertigung quasi unverkäuflich. Dabei wird oft verkannt, dass die EN 14428 bauordnungsrechtlich weder in Deutschland noch in Österreich bindend ist. Leider lässt Kapitel 1 „Anwendungsbereich“ eine klare Abgrenzung zum Massenprodukt vermissen.
Jede Norm steht unter dem Verdacht eine „Regel der Technik“ wiederzugeben. Dieses Regelwerk sorgt allerdings für eine extreme Verunsicherung innerhalb der gesamten Branche. So wurden viele kluge Empfehlungen ausgegeben, die alle darauf abzielten, den Bau von Ganzglasduschen dem Glaserhandwerk unmöglich zu machen.
In der Branche gab es viele gut gemeinte Ratschläge, wie zum Beispiel: „Der Glaser möge bei jedem Angebot darauf hinweisen, dass seine Leistung nicht ‚den Normen‘ entspräche und möge sich diesen Umstand schriftlich vom Kunden bestätigen lassen“. Damit wird impliziert, dass der Handwerker unfähig ist, nach den Regeln der Technik zu arbeiten.
Dem gegenüber ist eine sorgfältig geplante und handwerklich einwandfrei montierte Ganzglasdusche hinsichtlich der Vermeidung von Sporenbildung und Hygiene dem zur EN 14428 konformen Massenprodukt um Welten überlegen. Eine Regelung zur Planung und Montage von individuellen Einzelanfertigungen war überfällig.
Der Baustoff Glas ist hygienisch
Das Bad, insbesondere die Dusche, ist der am höchsten feuchtebelastete Bereich innerhalb der Wohneinheit. Zu hohe Luftfeuchtigkeit und Nässe und dadurch entstehende Schimmelbildung sind das größte Problem im Wohnungsbau von heute, denn sie sind stark gesundheitsgefährdend.
Wenn man von Hygiene im Zusammenhang mit Duschabtrennungen spricht, so kann man diese dadurch erreichen, dass man bei der Konstruktion weitestgehend auf Rahmen, extrudierte Dichtprofile zum Rahmen und vieles mehr verzichtet sowie den Fugenanteil auf das Notwendigste reduziert.
Nichts kommt den Anforderungen an Hygiene näher und ist leichter zu reinigen, als eine vom Glasfachmann hergestellte Ganzglasdusche, die weitestgehend auf Rahmenprofile verzichtet und möglichst wenige horizontale Flächen aufweist, damit dort kein stehendes Wasser zu Schimmel führen kann.
Die ÖNORM zeigt, wie es geht
In der ÖNORM B 3719 sind die Kriterien, die Hygiene ausmachen, klar definiert. Dadurch wird auch der Begriff „Ganzglasdusche“ eindeutig definiert, denn unter diesem Begriff ist keinesfalls eine vollgerahmte „Duschabtrennung“ aus Acrylglas zu verstehen.
Die Uniglas mit 20 Gesellschaftern hat hier große Vorarbeit geleistet und kann dem Glasfachmann nicht nur die konstruktiven Feinheiten kommunizieren, sondern auch Produkte anbieten, die dem Gedanken der Ganzglasdusche zu 100 Prozent entsprechen.
Dies sind im Besonderen die dauerhaft korrosionsbeständigen Glasoberflächen, z. B. auf dem Duschglas Uniglas | Clean in Kombination mit Beschlägen, die ohne Rillen, Ecken und schwer zu reinigende Bereiche konstruiert wurden.
Weiteres zentrales Thema sind die Glasverkleidungen und Glasrückwände im Duschbereich. Durch die Großflächigkeit, dem äußerst geringen Fugenanteil und die einfache Reinigung wird jeder Kunde, der nicht wertvolle Zeit seines Lebens mit der Duschreinigung verbringen will, diese Duschen schätzen. Eine Ganzglasdusche, sprich Glaswände, Glastüren und Glasverkleidungen sind für den modernen, nachhaltigen, hygiene- und gesundheitsbewussten Haushalt unverzichtbar.
Das sollte umgesetzt werden
- Keine Profilbeschlagsflächen etc. mit einer Breite > 8 mm (vermeidet stehendes Wasser)
- Keine Rillen, Ecken sowie schwer zu reinigende Teile im Nassbereich
- Keine extrudierten Profile im Bereich der Festteile
- Keine U-Profil-in-Profil-Lösungen, um Maßgenauigkeiten auszugleichen
- Möglichst wenig Schraubverbindungen, maximal in versenkter Ausführung (keine abstehenden Kunststoffkappen über Schraubenköpfe, etc.)
Eine Entwicklung, die den Nerv der Interessensvertreter des Glaserhandwerks trifft und Konsens schafft, um die niedergeschriebenen Kenntnisse als neuen deutschen bzw. EU-Standard noch weiter auszubauen und zu optimieren.
Die Probleme, die in Zusammenhang mit vorkonfektionierten Duschabtrennungen „von der Stange“ entstanden sind, wurden erkannt.
Sowohl die „überall passenden“ konstruktiven Ausführungen, die zu Lasten der Hygiene, Wartung und Pflege gehen, manche Ausführungen verkomplizieren oder sogar unmöglich machen, wie auch Kriterien, die einzig darauf abzielen, dass Wettbewerb nicht stattfindet, sollen bald der Vergangenheit angehören. Auch in Deutschland laufen Gespräche zur Schaffung einer DIN-Norm, in der den Vorteilen von Maßduschen voll Rechnung getragen wird.
Hier tragen auch die Verarbeiter Verantwortung
Vorreiter und Meinungsbilder ist bei all diesen Fragen einmal mehr die Uniglas. Diese leistet viel Vorarbeit: Die Zusammenarbeit von Praktikern mit dem Normungsausschuss kann tatsächlich positive Veränderungen am Markt bewirken.
Viele Fachleute, Sachverständige und Mitglieder des Normenausschusses haben sich am Normentwurf der Uniglas beteiligt. Es bleibt zu hoffen, dass sich die Inhalte auch bald in einer deutschen Norm wiederfinden werden.
Abgerundet wird dieses Wissen, das die Uniglas ( www.uniglas.de ) ihren Kunden zur Verfügung stellt, durch eine speziell von der Uniglas vertriebenen korrosionsbeständigen Glasoberfläche, die unter dem Namen Uniglas | Clean vermarktet wird.
Das Resümee von Uniglas
Wir sehen unsere Aktivitäten und unsere ständige Aufklärungsarbeit als verantwortungsvolle Pflicht, um neue Technologien, die einen wesentlichen Beitrag zu einer verbesserten Hygiene und dadurch auch zu einem verbesserten Wohlbefinden und Gesundheit der Benutzer beitragen, nicht nur als berufliche Herausforderung, sondern auch als verantwortungsvolle Pflicht gegenüber der Gesellschaft.—
Leichter Reinigen
Speziell für Bäder, Duschen und Nassbereiche bietet Uniglas eine dauerhaft korrosionsbeständige Glasoberfläche an. Diese ist als Uniglas | Clean erhältlich. Ergänzt wird das Angebot von Uniglas für Badezimmer durch viele Begleitmaßnahmen, wie z. B. Fertigung nach Maß, um dauerhafte Brillanz und umfasssende Hygiene im Bad sicherzustellen.
Warum eine Novellierung der EN 14428 sinnvoll ist
„Ziel des Norm-Entwurfes ist es, die unter Fachleuten unumstrittene Regel der Technik zu dokumentieren. Damit soll die fachgerechte Ausführung des Glasfachmanns unterstützt und bestätigt werden.“
 
     
     
     
    