Springe auf Hauptinhalt Springe auf Hauptmenü Springe auf SiteSearch

Sicherer Halt in der Dämmebene

_ Seit Jahren werden Fenster und Türen hinsichtlich ihres Einbruchwiderstandes geprüft. Grundlage für diese Prüfungen ist seit September 2011 die Normenreihe DIN EN 1627 bis 1630:2011-09 (vgl. z. B. [1]). Bei diesen „Einbruchsprüfungen“ nach gültiger Norm werden die Fenster in der Regel in einen starren Rahmen aus Stahl oder Holz eingebaut (vgl. Bild 1). Dieser Rahmen soll gemäß der Norm verschiedene Wandbauarten „simulieren“. Es werden drei verschiedene Prüfungen durchgeführt.

Die Gesamtprüfung besteht aus:

  • Statischer Belastung nach DIN EN 1628:2011-09
  • Dynamischer Belastung nach DIN EN 1629:2011-09
  • Manuellen Einbruchsversuchen nach DIN EN 1630:2011-09

Nur wenn alle drei Prüfungen durchgeführt wurden, kann endgültig beurteilt werden, welche Widerstandsklasse erreicht wurde. Die Widerstandsklassen werden in DIN EN 1627:2011-09 nach bestimmten Tätertypen bzw. dem mutmaßlichen Tatverhalten definiert.

Prüfung mit Fensterelement in der Dämmebene

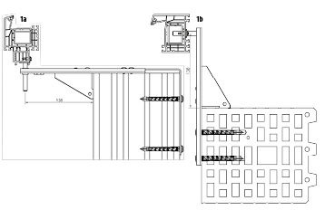
In der Regel werden auch bei Systemen zur Fenstermontage in der Dämmebene nur die Fenster selbst geprüft, d. h. die Konsolen werden an starren Stahl- oder Holzrahmen oder teilweise in Mauerwerk montiert geprüft. Dabei wird dann aber bei der Prüfung die Anbindung an das Mauerwerk vernachlässigt und damit nicht das Gesamtsystem aus Fenster, Verbindungsmittel (Konsolen, Dübel, etc.) und Verankerungsgrund beurteilt. Deshalb wurde von der Adolf Würth GmbH & Co. KG 2013 eine Prüfung in der realen Einbausituation mit einem zweiflügeligen Fensterelement mit den Abmessungen 2 x 2 m durchgeführt [2]. Die Konsolen wurden mit dem Kunststoffdübel W-UR 8 mm in einem Planziegel T-18 der Wienerberger GmbH mit einer Wandstärke von 17,5 cm montiert (Bild 1) und die Wand mit einem zusätzlichen Wärmedämm-Verbundsystem in einer Stärke von 20 cm versehen. Das Fensterelement war dabei ca. 14 cm vor der tragenden Wand montiert. Diese Art der Montage bietet den Vorteil, dass die Befestigungsmittel im Brüstungsbereich (Bild 1a) auf der inneren Wandseite liegen und im Leibungsbereich einen großen Randabstand haben (Bild 1b) und damit einem mechanischen Angriff gar nicht ausgesetzt sind.

Das Element wurde für die Versuche an der Oberseite nicht befestigt, um einen Rollladenkasten simulieren zu können, durch den keine tragende Befestigung nach oben realisiert werden kann. Im Brüstungsbereich und in der Leibung wurden die Konsolen im Abstand von 30 cm angeordnet, um die bei den Versuchen auftretenden Belastungen sicher in den Verankerungsgrund einleiten zu können (Bild 2).

Manuelle und statische Prüfungen

Bedingt durch den Verzicht auf eine obere Befestigung konnte beim Aufbringen der statischen Last in Höhe von 3 kN (in Fenstermitte) eine Verformung von rund 3 cm gemessen werden (vgl. Bild 3); eine durchgangsfähige Öffnung konnte jedoch trotz der großen Verformung ausgeschlossen werden. Von einer theoretischen und normkonformen durchgangsfähigen Öffnung wird immer dann gesprochen, wenn Schablonen der Größen Rechteck (400 x 250 mm), Ellipse (400 x 300 mm), Kreis (0 350 mm) durch die erzielte Öffnung geschoben werden können (Bild 4).

Beim mechanischen Angriff auf die Konsolen war es möglich, dass die Schraubverbindung zwischen Konsole und Fensterprofil gelöst werden konnte, d. h. die Hebelkräfte, die mit dem Schraubendreher aufgebracht wurden, waren ausreichend groß, die beiden selbstbohrenden Schrauben aus dem Stahlprofil im Rahmen „zu hebeln“ (Bild 5). Bedingt durch die engen Konsolabstände war es aber nicht möglich, ausreichend viele Konsolen zu lösen, um eine durchgangsfähige Öffnung herzustellen. Eine Lösung der Befestigungsmittel aus dem Verankerungsgrund war ebenfalls nicht möglich.

Zusammenfassung

Im Bereich der einbruchhemmenden Fenstermontage werden vor allem durch die mechanischen Angriffe auf die Befestigungsmittel (wie diese bei der Prüfung nach DIN EN 1630:2011-09 vorgegeben werden) extreme Anforderungen an die Befestigung bzw. die gesamten Verbindungsmittel gestellt. Diese Anforderungen können nicht alleine mit den Erfahrungen aus der herkömmlichen Befestigungstechnik beantwortet werden. Hier können nur Versuchserfahrungen am Gesamtsystem aus Fenster, Verbindungsmittel und Verankerungsgrund dazu beitragen, die Befestigungsaufgabe zu lösen. —

Literaturangaben[1] Küenzlen, J.: Dübeltechnik praxisnah, Teil 2: Bemessung und Ausführung von Sonderbefestigungen in Mauerwerk, Mauerwerk Kalender 2012: Eurocode 6, Verlag Ernst & Sohn, Berlin 2012[2] ift Rosenheim: Prüfbericht: Prüfung der Wandanbindung und der Wand in der Klasse RC 2 und RC 2N inAnlehnung an DIN EN 1627:2011 in einer Wand bestehend aus POROTON Planziegel-T18 der Wienerberger GmbH, Berichtsdatum 03. Juni 2013

Der Autor

Dr.-Ing. Dipl.- Wirt.-Ing. (FK) Jürgen H. R. Küenzlen M. A. ist Projektleiter im Bereich der Befestigungstechnik bei der Adolf Würth GmbH & Co. KG Künzelsau.