Springe auf Hauptinhalt Springe auf Hauptmenü Springe auf SiteSearch
  • Home
  • Alle Artikel zum Thema Dämmebene

Alle Artikel zum Thema Dämmebene

Richtig: Sehr gut ist hier zu erkennen, wie die Montagekonsolen der in der Dämmebene sitzenden Fenstertür im Mauerwerk befestigt sind und somit für einen sicheren Sitz des Elements sorgen.
Sachverständiger Marc Schütt bezieht Stellung

Sichere Montage in der Dämmebene

-

Klassische Klinkerfassaden sind besonders in Norddeutschland oder auch am Niederrhein beliebt und werden auch bei Neubauten regelmäßig eingesetzt. Im Neubau werden die Klinkerfassaden heutzutage vorrangig als Vorwandsystem umgesetzt. Dieser Wandaufbau ist herausfordernd für die Fenstermontage, wie der Sachverständige Marc Schütt zu berichten weiß.

Falsch: Eine untere Lastabtragung über ein Eisenrechteckrohr, das auf der Rohbetonplatte und dem Vorsatzmauerwerk lose aufliegt, ist nicht im Sinne einer geeigneten Lastabtragung anzusehen.
Sachverständiger Marc Schütt bezieht Stellung

Sichere Montage in der Dämmebene

-

Klassische Klinkerfassaden sind besonders in Norddeutschland oder auch am Niederrhein beliebt und werden auch bei Neubauten regelmäßig eingesetzt. Im Neubau werden die Klinkerfassaden heutzutage vorrangig als Vorwandsystem umgesetzt. Dieser Wandaufbau ist herausfordernd für die Fenstermontage, wie der Sachverständige Marc Schütt zu berichten weiß.

BTI

Sicherer Halt in der Dämmebene

-



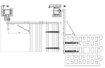
Mit dem Element-Montage-System EMS+SI stellt die BTI auf der BAU 2015 ein System für die Montage von Fenstern und Türen in der Dämmebene vor. Ob zweischaliges Mauerwerk oder Wärmedämmverbundsystem – durch die zwei verschiedenen Schenkellängen sei der PVC-Winkel für nahezu jede Anwendung...


Darstellung der Befestigung links (Bild 1a) im Brüstungsbereich und rechts (Bild 1b) in der Leibung.

Sicherer Halt in der Dämmebene

-

Montage von einbruchhemmenden Fensterelementen in der Wärmedämmebene 

 Optimierte Fenstermontagen im Zusammenspiel mit einem WDVS haben den Vorteil, dass das Bauelement in der richtigen Lage innerhalb der Leibung eingebaut wird. Aber was ist mit der Einbruchhemmung? Würth hat solch eine Einbausituation beim ift prüfen lassen und Jürgen Küenzlen berichtet über die Ergebnisse.

Element-Montage-Systeme von Foppe

Montage in der Dämmebene

-



Wärmedämmverbundsysteme (WDVS) und zweischalig ausgeführtes Außenmauerwerk haben die Befestigungstechnik von Fenster- und Türelementen grundsätzlich verändert – Fenster- und Türelemente sitzen heute in der Regel in der Dämmebene. Eine Befestigung sei dort nur über zusätzliche Montagebauteile...

Roka-Co2mpact SA mit Beschattungseinheit

Fenster in Dämmebene verschatten

-



Bisher konnte man sich bei der Fenstersanierung zwischen suboptimalen Vorgehensweisen entscheiden: Innerhalb des Mauerwerks war, wenn überhaupt ein solcher vorhanden, lediglich die Dämmung des Rollladenkastens möglich. Die Alternative war die Vergrößerung der Fensteröffnung – sowohl wenn eine...

Montagesystem von Foppe + Foppe

Sicherer Halt in der Dämmebene

-



Für die statisch und energetisch ausgereifte Befestigung von Fenstern und Türen in der Dämm­ebene bietet Foppe + Foppe das Montagesystem EMS+SI an. Es ermögliche einen bauphysikalisch sauberen Anschluss an unterschiedliche Fassaden­systemen. Die Laibungs­öffnung im Mauer­werk wird über einen...

Planung der Einbaulage

Optimierte Fenstermontage in der Dämmebene

-


Optimierte Fenster- und Türmontagen in der Dämmebene sind eine unabdingbare Notwendigkeit im Vergleich zur historischen Einbauweise in der tragenden Innenwand. Feuchteschäden und Energieverluste können so vermieden werden. Gleichzeitig ist dies für Planer und Monteure aber auch mit gewissen Herausforderungen verbunden. Hans Neumeier, Leiter Systemplattform CE-fix bei der VBH, klärt die wichtigsten Fragen.

Montagesystem von FOPPE + FOPPE

Sicherer Halt in der Dämmebene

-



Ob zweischaliges Mauerwerk oder Wärmedämmverbundsystem – Fenster und Türen sitzen in der Regel in der Dämmebene. Für deren wirtschaftliche sowie statisch und energetisch ausgereifte Befestigung bietet Foppe + Foppe ein neues Montagesystem an. Mit dem Element-Montage-System EMS+SI stellt das...