Springe auf Hauptinhalt Springe auf Hauptmenü Springe auf SiteSearch
SYSCAD 2019

Die doppelte Alternative

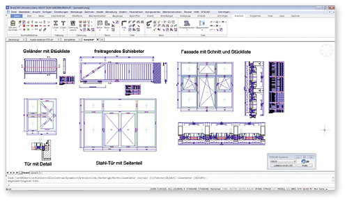
Das Zeichnen im Fenster-, Türen- und Fassadenbau spielt sich seit Anfang an überwiegend im DWG-Format von Autodesk ab. Hier konnte bislang kein anderer Anbieter das Monopol durchbrechen. Aber nun habe sich leise, still und heimlich die belgische Software-Schmiede Bricsys aufgemacht, Alternativen zu bieten: Unter dem Namen BricsCAD bietet dieses CAD-Programm innerhalb desselben Dateiformats, nämlich DWG, die Möglichkeit der 2D-Detailierung, der 3D-Modellierung, der Blechverarbeitung und der Gebäudemodellierung (BIM). Mit der Metallbau-Applikation Syscad stehen nun auch im BricsCAD die Funktionen für Folie, Dämmung oder Blech zur Verfügung. Syscad deckt darüber hinaus auch noch das Zeichnen mit Profilsystem-Blöcken der verschiedensten Lieferanten wie Schüco, Hueck oder Wicona etc. ab. Insgesamt werden mehr als 570 Profilsysteme von über 50 Lieferanten unterstützt. Damit werde die umfangreichste CAD-Bibliothek für die Arbeit mit Profilsystemen für Fenster, Türen und Fassaden geboten.

Auch Zubehörartikel wie Obentürschließer von Geze sind als intelligente Blöcke schnell einfügbar und revisionssicher beschriftbar. Der leichte Stahlbau ist dabei auch noch möglich. Mit der neuen Schnittstelle zum marktführenden Programm hinsichtlich der Kalkulation im Fenster, Türen und Fassadenbau – LogiKal aus dem Hause Orgadata – schließt sich nun auch im BricsCAD der Kreis.

Positionen aus dem LogiKal werden ins Syscad importiert. Schnitte werden aus dem Syscad erzeugt und geänderte Positionen werden automatisch aktualisiert. Raster werden aus der Software ins LogiKal exportiert. Das weit verbreitete AutoCAD wird von Syscad weiterhin unterstützt. Der Konstrukteur hat also die Wahl des Basisprogramms.

www.metallbau-cad.de

Jetzt weiterlesen und profitieren.

+ Glaswelt E-Paper-Ausgabe – jeden Monat neu
+ Kostenfreien Zugang zu unserem Online-Archiv
+ Fokus GW: Sonderhefte (PDF)
+ Webinare und Veranstaltungen mit Rabatten
uvm.

Premium Mitgliedschaft

2 Monate kostenlos testen