Springe auf Hauptinhalt Springe auf Hauptmenü Springe auf SiteSearch
PHI-Component Award

Das sind die Sieger-Fenster

_ Die besondere Herausforderung des Wettbewerbs lag in der vom Produkt zu erfüllenden Flexibilität: Als Szenario für die Bewertung galt ein Mehrfamilienhaus, bei dem im Jahr 2015 die Fenster ausgetauscht werden, während die Erneuerung des Putzes, einschließlich der Anbringung einer Wärmedämmung, erst für das Jahr 2025 geplant ist. Die Teilnehmer boten für dieses Gebäude ein Fenster mit Öffnungsflügel inklusive einer Verschattungsmöglichkeit. Bei der Angabe der Kosten waren neben der Montage auch ein eventuelles Versetzen des Fensters oder Nacharbeiten an der Einbausituation im Rahmen der Fassadendämmung im Jahr 2025 einzupreisen. Zum Component Award wurden Fenster aller Materialgruppen – Holz, Holz-Aluminium, Aluminium und Kunststoff – zugelassen, die über ein Passivhaus-Zertifikat verfügen.

Insgesamt wurden in diesem Jahr 30 Fenster für den vom Passivhaus Institut ausgelobten Component Award eingereicht. Es gab zwei erste und zwei dritte Preise sowie zwei Fenster, die mit einer besonderen Anerkennung bedacht wurden.

Bewertet wurde die Wirtschaftlichkeit, Anschaffungskosten wurden dabei den möglichen Energieeinsparungen gegenübergestellt. Eine Fachjury, in der unter anderem auch Chefredakteur Daniel Mund vertreten war, berücksichtigte die Aspekte Praktikabilität, Innovation und Ästhetik.

„Qualitätsgeprüfte Passivhaus-Komponenten sind für die Energieeffizienz von Gebäuden entscheidend – gerade auch bei Sanierungsprojekten. Umso erfreulicher ist es, dass auch hierfür inzwischen hochwertige Lösungen verfügbar sind“, sagt Prof. Dr. Wolfgang Feist, Leiter des Passivhaus Instituts. „Die ausgezeichneten Fenster sind hervorragende Beispiele dafür, dass Energieeffizienz nicht nur wirtschaftlich ist, sondern zugleich auch mit allen anderen Anforderungen an ein Bauteil bestens kombiniert werden kann“, sagt Dr. Benjamin Krick, der am Passivhaus Institut die Komponenten-Zertifizierung leitet.

Das sind die Gewinner

1. Preis: smartwin compact s von Lorber / Pro Passivhausfenster: Bei diesem Fenster erfolgt die Verschattung im Luftzwischenraum. Dieser ist jedoch nur in einer optionalen Variante öffenbar. Es handelt sich daher nicht um ein klassisches Verbundfenster. Der Grund dafür waren nicht die Kosten, sondern die Nutzerakzeptanz. Es wurden zwei Montagevarianten eingereicht. In der ersten wird das Fenster leicht zurückversetzt, jedoch nahezu bündig zur Außenwand montiert und verbleibt auch 2025 in dieser Lage. Die zweite Variante wird in der Ebene des alten Fensters in einen Blindstock eingebaut und 2025 wieder entnommen. Der Blindstock wird nach außen versetzt und bündig zur Außenkante der Mauer wieder eingebaut. Damit gelingt es, das Fenster im Anschluss teilweise in der Dämmebene zu platzieren. In der Variante mit einem 3-fach ISO plus vierter freibleibender Scheibe für die Jalousie wird ein Uw-Wert von 0,78 bzw. 0,59 W/(m²K) mit Dämmung angegeben.

Gewürdigt wurde die Ergänzung des Fensterrahmens um ein integriertes Sonnenschutzsystem. Und der Blindstock als Montagehilfe ermöglicht den präzisen Einbau und einfachen Anschluss der luftdichten- und winddichten Ebenen. Die Fensterbankanschlüsse sind jeweils gut gelöst, besonderes Lob gebührt der Idee des „Aufschieblings“.

1. Preis: Optiwin connecta: Bei dieser Idee wird zunächst ein Rahmen als eine Art Zage umlaufend innenbündig montiert. Das Fenster wird so davor gesetzt, dass der Rollokasten außenbündig mit der Wand abschließt. Im zweiten Schritt wird das Fenster nach außen ausgebaut und eine bereits im ersten Schritt gelieferten Erweiterung der Zarge an die bereits eingebaute angesetzt und außenseitig ein CompacFoam-Rahmen montiert. Das Fenster wird wieder eingebaut und das WDVS angearbeitet. Auch in der neuen Position schließt der Rollokasten außenbündig ab. Das System Connecta wurde als universeller Adapter für alle Optiwin Fenstersysteme entwickelt und ist auch für andere Fenster geeignet.

Die Jury würdigte dabei die hohe Praktikabilität und Funktionalität (Einbau, Umbau, Restarbeiten). Der CompacFoam Montagerahmen verbessert den Schallschutz. In beiden Fällen ist eine witterungsgeschützte Position durch Überstand (Mauerwerk bzw. WDVS) gegeben. Auch der Gewebescreen ist immer geschützt. Gelobt wird außerdem der universelle Lösungsansatz für verschiedene Fenstertypen.

Der Jury erschien aber auch das Zwischenlagern des Rahmeneinsatzes sowohl logistisch, als auch bezüglich der Veränderlichkeit der Oberflächen über die Zeit kritisch.

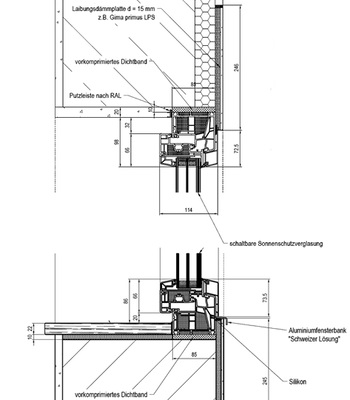
3. Preis: Energeto 8000 view von aluplast

Eingereicht wurde das Kunstoffenster energeto 8000 view kombiniert mit verschiedenen Verschattungsmöglichkeiten. Für den Einbau wird umlaufend der Putz ca. 25 cm um die Fensteröffnung entfernt und eine gedämmte Putzträgerplatte eingesetzt. So entsteht ein sauberer Anschlag, gegen den das Fenster eingebaut wird. 2025 verbleibt das Fenster in seiner Position.

Von der Jury gewürdigt wurden die vielfältigen Lösungsvorschläge für die Verschattung – unter anderem auch elektrochrome Verglasung. Gefallen hat der Jury auch der fast außenbündige Einbau mit guter Lösung zur Schlagregendichtung durch definierten Anschlag über eine gedämmte Putzträgerplatte in der Übergangszeit. Durch die Putzträgerplatte wird auch der Wärmeverlust reduziert und die Temperatur im Bereich der Laibung erhöht. Am unteren Anschluss wird die Lösung mit der Putzträgerplatte durch den Anbau der Fensterbank nach dem „Schweizer Modell“ ermöglicht, bei dem die Fensterbank in eine Nut im Rahmen eingeschoben wird.

Die Jury merkte an, dass die Anschlussfuge zwischen Putz und Putzträgerplatte eine zu lösende Herausforderung bleibt. Auch die Raffstorelösung im gedämmten Zustand ist optimierungsfähig.

3.Preis: eco 90 von Pural: Dieses Fenster besteht aus außen- und innenseitigen Deckschalen aus Alu, die auf einen Kern aus hochfestem Polyurethanschaum aufgebracht sind. Es wird auf einer Montagezarge aus demselben PU-Material montiert und außenbündig zum Mauerwerk in die Fensterlaibung eingesetzt. 2025 wird die Verbindung zur Laibung gelöst und das Fenster nach außen geschoben.

Die Jury lobte die Idee des Rahmens in Verbindung mit Zargen aus hochfestem PU-Schaum, welcher als Schiebeelement hervorragend für die Step-By-Step-Lösung geeignet ist.

Auch die für ein Aluminiumfenster erstaunlich niedrigen Kosten und der sinnvolle Materialeinsatz wurden gewürdigt: Aluminium wird dort und nur dort eingesetzt, wo es Sinn macht und finish-bedingt notwendig ist.

Die Jury empfiehlt eine statische Überprüfung der Einbauzarge. Am Fensterbrett führten die Stufungen zur Abwertung. Besser Stufung beispielsweise durch Ansetzen weiterer Elemente vermeiden.

Besondere Anerkennungen

Die Jury vergab für das „DWplus Integral“ von Wiegand und für das „Null-Fenster“ von Fanzola besondere Anerkennungen.

Das DWplus Integral von Wiegand hat außenseitig umlaufend als Dämmung ein Hohlkammer-profil. Das Fenster wird so in die Laibung eingebaut, dass dieses Hohlkammerprofil nach außen übersteht. Es wird mit einem Aluminium Z-Winkel abgedeckt, der nach der Übergangszeit entfernt wird. Das Fenster selbst verbleibt in seiner Position.

Die Verschattung ist durch einen Raffstore gelöst. Die Jury meint, dass es eine gut durchgearbeitete, konventionelle Lösung darstellt. Es kann eine hohe Praktikabilität und Ausführungssicherheit konstatiert werden. —

www.passivhaus-institut.de

Daniel Mund

Preisträger setzen auf Swisspacer

Wer energetisch optimierte Fenster herstellen will, kommt um Warme Kante Abstandhalter nicht herum. Dieser Schluss liegt nahe angesichts der Ergebnisse der diesjährigen Passivhaus Component Awards: Alle sechs Preisträger setzen auf Swisspacer-Abstandhalter und erreichen auch dadurch ihre ausgezeichnete Energieeffizienz. Dr. Benjamin Krick vom Passivhaus-Institut bestätigt: „Die Wahl des eingesetzten Abstandhalters ist von großer Bedeutung für Fensterhersteller: Das kleine Bauteil beeinflusst maßgeblich die Energiewerte eines Fensters und damit letztlich die Energiebilanz des gesamten Passivhauses.“

So unterschiedlich sich die sechs prämierten Lösungsansätze auch präsentierten, bei ihrer Entscheidung für den Abstandhalter waren sich die Hersteller einig. Der Hersteller betont: Über 80 Prozent der Hersteller von Energiesparfenstern und -fassaden würden auf Swisspacer-Produkte setzten. Das zeige ein Blick in die Komponentendatenbank des Passivhausinstituts im Internet.

www.swisspacer.com

Jetzt weiterlesen und profitieren.

+ Glaswelt E-Paper-Ausgabe – jeden Monat neu
+ Kostenfreien Zugang zu unserem Online-Archiv
+ Fokus GW: Sonderhefte (PDF)
+ Webinare und Veranstaltungen mit Rabatten
uvm.

Premium Mitgliedschaft

2 Monate kostenlos testen