Springe auf Hauptinhalt Springe auf Hauptmenü Springe auf SiteSearch
Lüftungsgerät für die Fensterintegration

Lüftung bleibt Fensterthema

„Bei einer luftdichten Gebäudehülle sind Lüftungsanlagen obligatorisch – neben dem Energiesparen geht es hier vor allem um Wohnkomfort“, so Peter Eugster. Er ist Entwicklungsingenieur bei Fentech, die für diverse Entwicklungen im Fenster- und Fassadenmarkt bekannt ist.

In fast jedem Fall erfolgt die mechanische Lüftung durch Elemente der Haustechnik, die nichts mit dem Fenster zu tun haben. „Wenn Lüftungssysteme doch einmal im Fenster angeboten werden, handelt es sich meist um Fensterflügel, die über den Beschlag öffnungsgesteuert sind, oder um mehr oder leider weniger gesteuerte Lüftungsklappen im Blendrahmenbereich (gerade bei Kunststofffenstern), die jedoch ihre Aufgabe meist unbefriedigend erledigen“, erläutert Eugster die Situation.

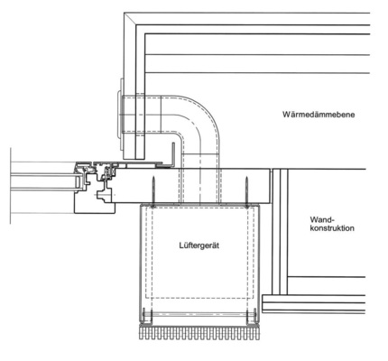
In einem Vortrag im Rahmen des Fenster-Türen-Treffs der Holzforschung Austria im März stellte Eugster jedoch klar, dass dies nicht zwangsläufig so bleiben müsse: „Die Fentech stößt mit einem Lüftungsgerät mit Wärmerückgewinnung für die Fensterintegration in eine Wirkungsklasse vor, die bis dahin nur von Haustechnikunternehmen angeboten wurde und nicht von der Fenster­industrie.“ Seit einigen Jahren wird das „i-vent“ genannte Gerät in der Schweiz in Serie produziert und von Fentech an die Züricher FensterFabrik Albisrieden ausgeliefert. Diese hat bis heute fast 1000 Geräte in drei größeren Mietwohnprojekten installiert. Die Anlagen sind dort neben den Fenstern in die Leibung integriert.

Gerade bei der Bestandserneuerung fehle es oft an der Möglichkeit, Lüftungskanäle und Schalldämpfer zu verlegen, die für zentrale Systeme obligatorisch sind. Aber auch beim Neubau würde der Wegfall der Verrohrung nur Vorteile ergeben: Beispielsweise könne der Statiker die Betondecke ohne Platz für Rohre kompakter dimensionieren. Zusätzlich ist mit dezentralen Geräten eine Einzelraumregelung möglich.

Das Lüftungsgerät besteht größtenteils aus Sperrholz und wird für die Fentech von einer Schreinerei produziert und zusammengebaut. Aber Fentech offeriert diese Möglichkeit auch an weitere Partnerunternehmen: Auf diese Art könnte ein kooperierender Fensterhersteller eine zusätzliche Wertschöpfung in sein Unternehmen integrieren.

Die Steuerung enthält u.a. einen CO 2 -Fühler, der im Abluftstrom angeordnet ist. Mittels G4-Filter werden Blütenstaub und Pollen zurückgehalten, was Allergiker zu schätzen wissen. Der Lüfter arbeitet permanent auf einer Grundstufe mit einer Leistung von 10 m³/h. Stellt der Fühler eine verstärkte Gaskonzentration fest, regelt er die Lüfterleistung hoch. Schalldämm-Messung an der TH Luzern Ende 2010 bescheinigten dem i-vent einen Wohnzimmer-tauglichen Geräuschpegel von nur 25 dB. Die Geräte sind 20 cm breit und raumhoch (andere Maße sind in Vorbereitung) und werden direkt neben den Fenstern seitlich auf einer Rahmenverbreiterung angebracht. Diese besteht aus einem Sandwichelement aus zwei Spanplatten mit einem Dämmkern, das fixer Bestandteil des Fensterrahmens ist. Die beiden Öffnungen für Frisch- und Abluft sind in der Rahmenverbreiterung enthalten; hier werden die Schläuche angeschlossen, die die Fassade durchdringen. Die Lüftungseinheit wird komplett mit Netzteil und Filter geliefert und erst nach erfolgtem Innenausbau auf die Rahmenverbreiterung montiert. Im Unterschied zu einem normalen Fenster ist ein zusätzlicher Elektroanschluss notwendig.

Resümee von Peter Eugster: „Wir haben den Lüfter so entwickelt, dass ein Fensterbetrieb ihn selbst herstellen kann. Die Teile einfach nur zuzukaufen, würde doch keine echte Wertschöpfung für die Betriebe bringen. Mit unserer Entwicklung kommt die Lüftung zurück zum Fenster – da, wo sie hingehört.“ —

Jörg Pfäffinger

Jetzt weiterlesen und profitieren.

+ Glaswelt E-Paper-Ausgabe – jeden Monat neu
+ Kostenfreien Zugang zu unserem Online-Archiv
+ Fokus GW: Sonderhefte (PDF)
+ Webinare und Veranstaltungen mit Rabatten
uvm.

Premium Mitgliedschaft

2 Monate kostenlos testen