Springe auf Hauptinhalt Springe auf Hauptmenü Springe auf SiteSearch
Wenn Fachpartner und Hersteller eng zusammenarbeiten

Der Weg ist das Ziel

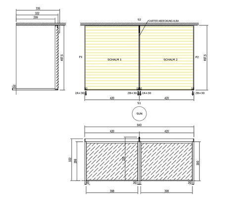
Durch sein zeitloses Design wurde das bioklimatische Lamellendach Alba von Corradi in gekuppelter Bauweise bei einer Gesamtbreite von 8,4 m und einer Bautiefe von 5 m an die moderne Gebäudestruktur angepasst. An die Fassade angebaut mit Pfeilern, die frontal positioniert sind, entastand eine überdachte Fläche von rund 42 m2. Die Lamellen der Alba sind seitlich gebogen und so entwickelt, dass das Wasser seitlich abläuft, auch wenn sie nach einem Gewitter geöffnet werden.

Bei geschlossenen Lamellen hält Alba jedem Regen stand, der durch die in die Pfeiler integrierten Regenrinnen abgeleitet wird. Alba ist darüber hinaus mit einem innovativen Spritzschutzsystem ausgestattet, das verhindert, dass das Wasser bei starken Regenfällen in den Innenbereich spritzt. Vollständig geöffnet sind die Lamellen nur 9,5 cm oberhalb der Abdeckung sichtbar. Auch die Schutzabdeckung des Motors überschreitet mit 13 cm nur geringfügig die Gesamthöhe der Konstruktion.

Im vorderen Bereich wurde die Alba mit den ZIP-Systemen Magiko B ergänzt, um auch hier einen ausreichenden Sonnen- und Wetterschutz zu erreichen, um so maximalen Komfort für die Bewohner zu ermöglichen.

Im vorderen Bereich wurde die Alba mit den ZIP-Systemen Magiko B ergänzt, um auch hier einen ausreichenden Sonnen- und Wetterschutz zu erreichen.

Foto: Janßen Outdoor Living Konzepte / Corradi

Im vorderen Bereich wurde die Alba mit den ZIP-Systemen Magiko B ergänzt, um auch hier einen ausreichenden Sonnen- und Wetterschutz zu erreichen.

Planung und Gestaltung

Bei der Planung erfolgte die Analyse und Berücksichtigungen der individuellen Kundenbedürfnisse unter der Betrachtung von Bodenflächen, Statik, Fundamenten, Befestigungsmöglichkeiten, Elektro- und Wasseranschlüssen.

„Die Konzeption und der Entwurf der Anlagen führte zu verschiedenen Lösungsansätzen, bei denen Nutzung von Licht und Schatten für eine atmosphärische Gestaltung im Vordergrund stand“, erklärt Martin Janßen, der bei der Auswahl der Outdoor Living Anlagen immer für eine harmonische Integration in der Umgebung sorgt. „Für die Montage auf der Dachterrasse wurden Windlast und Statik geprüft, und dementsprechend die Befestigung auf dem Flachdach des Gebäude angepasst“, führt Janßen fort.

Baurechtliche Aspekte

In der Konzeptionsphase wurden auch die relevanten gesetzlichen Bestimmungen und Normen beachtet, und Genehmigungsverfahren sowie baurechtliche Anforderungen geprüft. Auch Vertrags- und Haftungsfragen waren bei der Realisierung des Outdoor-Living Projektes ein wesentlicher Aspekt.

Montage und Ausführungsdetails

Grundlage für die Montage waren die Konstruktionsprinzipien der Corradi Anlagen, um eine fachgerechte Montage von Fundamenten, Befestigungsmitteln, Anschlüssen und der Anlage selbst zu ermöglichen. Komplexere Fragen technische Fragen wurden mit dem Konstruktionsbüro von Corradi in Bologna geklärt. Die Befestigung am Boden erfolgte mit einem statisch berechneten Stahlgerüst am Boden inkl. der Stahlplatten, auf die die Standfüße der Alba metrisch verschraubt wurden. Der Baukörper wurde vom Dachdecker mit einem Querträger Leimbinder versehen, um eine optimale Befestigung der Alba zu erreichen.

Montagefreundlichkeit inclusive

Bei der Entwicklung der Corradi-Produkte wird natürlich auch auf die Montagefreundlichkeit der Produktes geachtet, um die Montage­zeiten so gering wie möglich zu halten. Auch ­Wartungs- und Servicearbeiten sollen so leicht von der Hand gehen.

„Auch das Thema Schulung für Fachhändler wird berücksichtigt, um optimale Bedingungen bei Beratung, Planung und Montage zu schaffen“, erklärt Sales Coordinator Cristian​ Giangiordano, „und mit unseren über die Region verteilten Außendienstmitarbeitern können wir optimale Voraussetzungen in der Betreuung unserer Fachhändler schaffen“.

Jetzt weiterlesen und profitieren.

+ Glaswelt E-Paper-Ausgabe – jeden Monat neu
+ Kostenfreien Zugang zu unserem Online-Archiv
+ Fokus GW: Sonderhefte (PDF)
+ Webinare und Veranstaltungen mit Rabatten
uvm.

Premium Mitgliedschaft

2 Monate kostenlos testen