Springe auf Hauptinhalt Springe auf Hauptmenü Springe auf SiteSearch
rubo Hebeschiebetüren

Neues Schnellmontage-Kit

Auf der FRONTALE stellt rubo Fenster ein neues Schnellmontage-Kit für HS-Türen vor. Es soll noch einfacher, schneller und montagefreundlicher für großzügige Fensterflächen und eindrucksvolle Ausblicke sorgen. Bei der Entwicklung konnte rubo auf die Unterstützung der Spezialisten von Deceuninck zählen, die das System auch exklusiv extrudieren und bereits mit einem eigenen Schnellmontage-Kit seit mehr als 5 Jahren positive Erfahrungen gesammelt haben.

Das Schnellmontage-Kit für Hebeschiebetüren vereinfacht vor allem die Montage auf der Baustelle, aber auch Transportschäden werden so vermieden und ein platzsparender Transport ist gewährleistet. Der Rahmen wird in wenige Teile zerlegt angeliefert und kann einfach und schnell vor Ort montiert werden, was besonders auch in schwierigen Einbausituationen von Vorteil ist. Für die Monteure bedeutet das einen enormen Vorteil, da keine gesundheitlichen Schäden durch das schwere Heben von fertigen Elementen entstehen. Vorbereitete Montageteile verbinden den Festflügel sicher und fest mit dem Rahmen und erleichtern die passgenaue Montage der Türe.

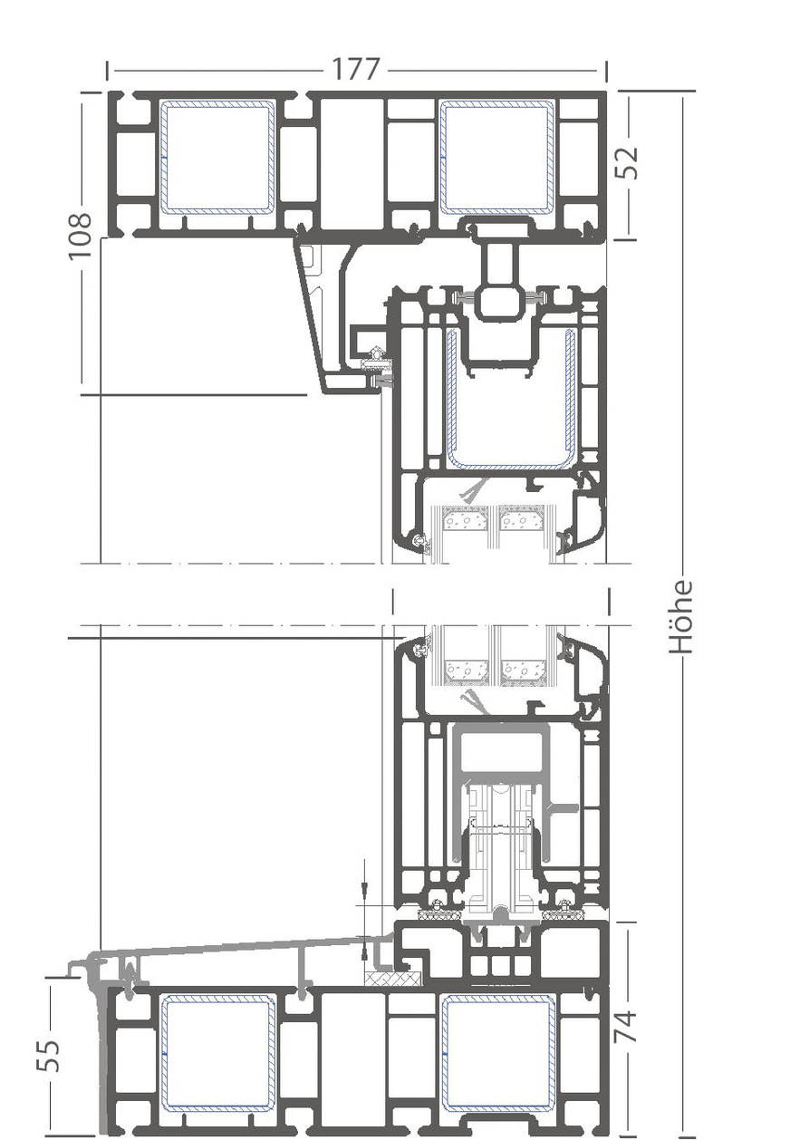
Die Hebeschiebetür weist mit einer geringen Bautiefe von 177 mm einen Wärmedämmwert von Uf = 1,3 Wm2K auf und kann Verglasungen bis 52 mm dicke einsetzen. Ein großes Farbprogramm und optionale Aluminiumschalen sind möglich. 

rubo Hebeschiebetüren gibt es ab sofort auch als Schnellmontage-Kit, das so noch einfacher, schneller und montage-freundlicher für großzügige Fensterflächen und eindrucksvolle Ausblicke sorgt.

Foto: rubo Fenster GmbH & Co. KG

rubo Hebeschiebetüren gibt es ab sofort auch als Schnellmontage-Kit, das so noch einfacher, schneller und montage-freundlicher für großzügige Fensterflächen und eindrucksvolle Ausblicke sorgt.