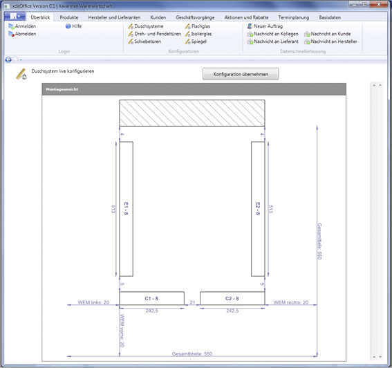
Die Softwareentwickler der Die Xavannah dataprocessed engineering führten die neue Warenwirtschaftssoftware „xdeOffice“ vor. Dabei handelt es sich um eine lokale Windows-Version, die ohne Installation sogar von einem USB-Stick läuft. Anwendungen wie Konfiguratoren für Dreh-, Schiebe- und Pendeltüren oder Duschsysteme werden mit der Industrie und Kunden entwickelt und als multifunktionale „elektronische Werkzeuge“ bereitgestellt. Mit diesen Konfiguratoren lassen sich maßstabsgerechte Zeichnungen, Aufbauanleitungen oder CAD-Zeichnungen (DXF, DWG) erstellen, für die weitere Verwendung in der Produktion. Individuelle Bearbeitungen des Glases wie Eckabschnitte, Randausschnitte, Bohrungen, etc. lassen sich hierbei berücksichtigen. Zudem kann man Stücklisten mit Originalartikelnummern für eine Weiterverwendung aller Komponenten erzeugen. Die Konfiguratoren lassen sich bei den Betrieben intern oder auch im Kundenprozess (B2B / B2C) einsetzen.
Auf der Messe lies sich auch ein erster Ausblick auf die neue Warenwirtschaftssoftware des Anbieters erhaschen. Onlinesysteme und betriebsinterne IT-Anwendungen verschmelzen hierbei zu einen Gesamtprodukt. Diese Software arbeitet mit einem hausinternen Server beim Kunden, verbindet aber auch Internetsysteme, wie z.B. Homepage oder Bestellsysteme.
Der IT- Dienstleister bietet neben dem digitalen Onlinetool auch die Vorteile eines starken Partnernetzwerks. Die Firma unterstützt hierbei individuell und herstellerneutral deutschsprachige Händler- und Handwerkskunden aus dem Glas- und Beschlagbereich. Nach vier Jahren betreut Xavannah jetzt über 60 Händler und Verarbeiter und bietet für sie firmenindividuelle Marketingunterstützung für alle Produktbereiche an. Dieses Konzept wurde auf der Messe unter den Namen „best in glass“ vorgestellt.
 
    