Springe auf Hauptinhalt Springe auf Hauptmenü Springe auf SiteSearch
Solarlux

Glas-Elemente bewegen Raumgrenzen

Solarlux Produkte verbinden Funktionalität, Langlebigkeit und Designanspruch. Neuere Lösungen überzeugen durch vielfältige Konfigurationsmöglichkeiten. Sie zeigen auch: Einbruchschutz, Energieeffizienz und Schallschutz stehen dazu in keinem Widerspruch.

In den Varianten Combiline und Woodline leitet bei der Faltwand ein Isoliersteg dynamische Lasten aus dem Laufwagen und den Bändern in den Rahmen und sorgt für Stabilität und Isolierung.

Foto: Solarlux GmbH

In den Varianten Combiline und Woodline leitet bei der Faltwand ein Isoliersteg dynamische Lasten aus dem Laufwagen und den Bändern in den Rahmen und sorgt für Stabilität und Isolierung.
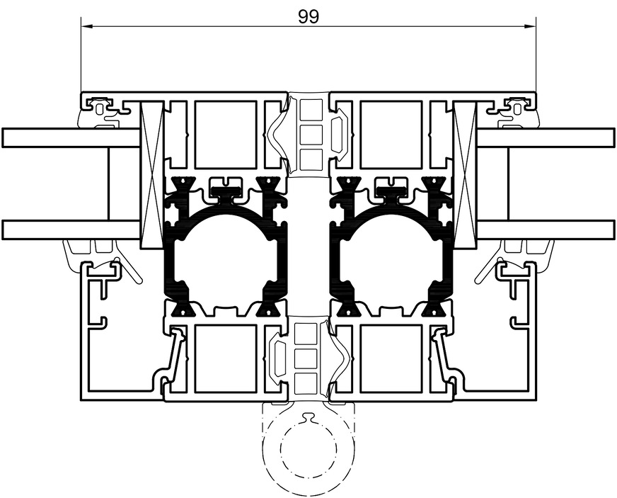
Schmale Ansichtsbreite und Stabilität dank BionicTurtle: Der multifunktionale Isoliersteg dient in den Varianten Ecoline und Highline zur Aufnahme von Verriegelung sowie Beschlägen.

Foto: Solarlux GmbH

Schmale Ansichtsbreite und Stabilität dank BionicTurtle: Der multifunktionale Isoliersteg dient in den Varianten Ecoline und Highline zur Aufnahme von Verriegelung sowie Beschlägen.

Die Glas-Faltwand der neueren Generation

Die Glas-Faltwand ist von Beginn an das Herzstück des Unternehmens. Sie lässt sich über die gesamte Raumbreite auffalten, die zusammenhängenden Glaselemente werden als schmales Paket an der Seite verstaut. Geschlossen schafft sie fast grenzenlose Raumeindrücke, denn die filigranen Profile bieten maximale Durchsicht.

Für die neueste System-Familie Ecoline, Highline, Woodline und Combiline hat man die patentierte Technik der Vorgängermodelle perfektioniert und für das Material Holz sowie die Kombination Aluminium/Holz angepasst. Zugleich erleichtert die vertraute Technik Fachbetrieben die einfache Justierbarkeit und eine schnelle Montage.

Auch geschlossen geben die Aluminium-Systeme Ecoline und Highline mit Ansichtsbreiten von nur 99 mm im Flügelstoß Blicke in die Umgebung frei. Beim Aluminium/Holz-System Combiline konnte eine Profilansicht von 143 mm realisiert werden, und das Holzsystem Woodline kommt mit nur 147 mm aus.

Geschlossen garantiert die bewegliche Fassadenlösung beste Wärmedämmwerte. Die Highline ist mit bis zu 0,8 W/m²K sogar passivhaustauglich.

Die hochwertige Lauftechnik aus Edelstahl ermöglicht auch bei hohen Glasgewichten und großen Elementen eine ausgezeichnete Stabilität und einen ruhigen Lauf. Zudem ist die Technik wartungsarm und verschleißfrei.

Bodenschienen sind in verschiedenen Ausführungen erhältlich: barrierefrei und wohnraumtauglich oder auch als Nullbarriere-Lösung für den gewerblichen Einsatz.

Nach innen oder außen öffnend, nach links und/oder rechts faltbar: Die System-Familie bietet eine nahezu uneingeschränkte Vielzahl von Öffnungsvarianten. Jede Glas-Faltwand wird nach Maß gefertigt und ist kombinierbar mit Oberlichtern, Fest-, Dreh-Kipp- und Eckelementen.

Die Systeme werden vielfältig eingesetzt: Sie sind die großflächige und bewegliche Alternative zur Terrassentür oder zum klassischen Fenster. In öffentlichen Gebäuden öffnet die bewegliche Fassadenlösung Geschäftseingänge, VIP-Lounges in Stadien oder Balkone im mehrgeschossigen Wohnungsbau. Maßgefertigt können sie als passgenaues Unterbau-Element mit einem Wintergarten kombiniert werden. Die Einbruchhemmung ist bis zu RC2 zertifiziert.

Mehr als ein Schiebefenster: cero

Besondere konstruktive und technische Details zeichnen cero aus, welches Solarlux als fertiges, zertifiziertes Schiebefenster mit allen verfügbaren Systemkomponenten aus einer Hand liefern kann. Kein anderes Schiebefenster bietet schmalste Profilansichten von nur 34 mm für Elementgrößen bis zu sechs Metern Höhe – unabhängig von der Windlast. Ein Tageslichtanteil von 98 % unterstreicht die höchste Transparenz für großzügige Ausblicke. cero lässt sich mit einer Glasfläche bis zu 15 m² und einem Gewicht bis zu 1000 Kilo dank mühelos manuell bewegen. Ein kompletter Automatikbetrieb inklusive elektromechanischer Ver- und Entriegelung ist ebenso möglich.

Bei einer 3-fach Einscheiben-Sicherheitsverglasung erreicht das System cero III Uw-Werte im Bereich der Passivhaustauglichkeit.

Um den besonderen Sicherheits-Anforderungen an extrem große Glasflächen gerecht zu werden, ist eine Ausstattung bis zur Einbruchschutzklasse RC3 erhältlich, optional ist auch die Integration in ein bestehendes, übergeordnetes Überwachungssystem möglich.

Die verdeckt liegende Technik „TwinX“ zentriert die Flügel zueinander, stabilisiert bei hoher Windlast und sorgt für einen gleichmäßigen Fugenverlauf.

Foto: Solarlux GmbH

Die verdeckt liegende Technik „TwinX“ zentriert die Flügel zueinander, stabilisiert bei hoher Windlast und sorgt für einen gleichmäßigen Fugenverlauf.

So geht man bei Solarlux mit der Corona-Pandemie um

Stefan Holtgreife, geschäftsführender Gesellschafter von Solarlux GmbH.

Foto: Solarlux GmbH

Stefan Holtgreife, geschäftsführender Gesellschafter von Solarlux GmbH.

GLASWELT – Wie hat sich die Corona-Pandemie bislang auf die Geschäfte von Solarlux ausgewirkt?

Stefan Holtgreife – Anfangs gab es ein Schockmoment, und wir mussten uns zunächst sammeln. Der Absatz in den USA und in Großbritannien – beides wichtige Märkte für uns – war zunächst deutlich eingebrochen. In anderen Ländern, vor allem in Deutschland und den Niederlanden, verlief die Entwicklung aber sehr gut. Zwischenzeitlich hat sich auch der Markt in den USA wieder erholt. Derzeit liegen wir 20 Prozent über dem Vorjahresniveau. Allerdings beobachten wir, dass einige unserer Lieferanten mit Schwierigkeiten zu kämpfen haben.

GLASWELT – Haben sich im Zuge der Krise Arbeitsorganisation und -strukturen bei Ihnen verändert?

Holtgreife – Auf jeden Fall. Dankenswerter Weise benötigten wir bislang keine Unterstützung durch den Staat – und danach sieht es auch weiterhin nicht aus. Doch das Homeoffice hat deutlich an Bedeutung gewonnen. Die Möglichkeit, von Zuhause aus arbeiten zu können, war allerdings schon vor der aktuellen Situation ein häufig geäußerter Wunsch unserer Mitarbeiterinnen und Mitarbeiter. Daher hatten wir – wo immer das möglich war – die entsprechenden Strukturen dafür bereits schon vorher geschaffen. Wir mussten aber in einigen Bereichen komplett umdenken.

GLASWELT – Zum Beispiel?

Holtgreife – Normalerweise laden wir regelmäßig unsere internationale Verkaufsmannschaft und wichtige Vertriebspartner für mehrere Tage zu uns auf den Campus in Melle ein. In diesem Jahr haben diese Veranstaltungen erstmals komplett digital stattgefunden. Mehr als 120 Gäste rund um den Globus miteinander zu vernetzen, ist ein gehöriger Kraftakt für ein mittelständisches Unternehmen. Aber das Format hat sich für uns bewährt. Ähnliches erleben wir auch im Bereich Messe: Veranstaltungen werden mehr und mehr digital angeboten.

GLASWELT – Wie wirkt sich die aktuelle Situation im Hinblick auf Ihre Produktionsabläufe aus? Wie gehen Sie hier vor?

Holtgreife – Wir haben gute Erfahrungen damit gemacht, aktiv in die Belegschaft hineinzuhorchen: Was kann verbessert werden? Welche Hürden gibt es? Was hat sich geändert und inwiefern wirkt es sich für uns aus? Daher haben wir einen regelmäßig stattfindenden runden Tisch eingeführt mit einem festen Team und wechselnden Mitarbeiterinnen und Mitarbeitern aus verschiedenen Bereichen. Zudem ist es unabdingbar, sich gut zu vernetzen – nicht nur mit anderen Unternehmen, sondern auch mit öffentlichen Einrichtungen, Behörden und Fachleuten. Um voneinander zu lernen, welche Strukturen und Maßnahmen wirksam sind, als Unternehmen diese herausfordernde Zeit bewältigen zu können. Dieses Wissen geben wir auch weiter, um unsere Partner handfest zu unterstützen: So haben wir etwa nur wenige Tage nach dem Lockdown digitale Seminare realisiert zu den Themen digitale Angebotsformate, Umgang mit Kurzarbeit und Mehrwertsteuersenkung. Unsere Partner waren hier auf schnelle Unterstützung angewiesen und haben diese sehr geschätzt.

GLASWELT – Herzlichen Dank für Ihre Auskünfte – alles Gute für Sie und das ­Solarlux-Team.