Die heute gängigen Fensterkonstruktionen entstanden in ihren Grundzügen in den 1960er-Jahren mit dem Aufkommen der Isoliergläser und der Entwicklung des Einhanddrehkippbeschlags. Seither wurde diese „Grundkonstruktion“ weiterentwickelt und ständig verbessert und so auf das heute bekannte und erwartete sehr hohe Leistungsniveau gebracht. Christoph Rellstab von der BFH Biel schaut für uns in die Glaskugel, wie es jetzt weitergehen könnte.
In den letzten 30 Jahren wurden diverse Verbesserungen und Weiterentwicklungen bei der „Grundkonstruktion Fenster“ gemacht. Viele Entwicklungen verfolgten die Zielsetzung, die Fensterkonstruktionen und damit die Gebäude energieeffizienter zu machen. Treiber dafür waren nebst den sich stetig verschärfenden Vorschriften insbesondere freiwillige Labels und Standards wie Minergie (in der Schweiz), Niedrigenergie- und Passivhausstandard. Das hat dazu geführt, dass deutliche energetische Verbesserungen im Bereich der Rahmen- und der Verglasungssysteme erreicht worden sind.
Wichtiger Meilenstein: Wasserlacke für Holzfenster
Für die Fensterbranche entscheidend war unter anderem die Bestrebung, in den Oberflächenbehandlungssystemen die bisher umweltschädlichen Lösemittel durch Wasser zu ersetzen. Dies hatte starke Auswirkungen auf die Fensterkonstruktionen und auch auf den Materialeinsatz im Fensterbau. Neue Oberflächen hatten im Vergleich zu den lösemittelbasierten Systemen andere Leistungseigenschaften, welche die Fensterproduzenten zwangen, neue Wege zu gehen und Prozesse sowie Konstruktionen weiterzuentwickeln. In diesem Umfeld entstanden Holz-Glas-Verbund- und Holz-Alu-Konstruktionen. Dieses Umfeld begünstigte auch den Aufstieg der Fenster mit Kunststoffrahmen, welche die Eigenschaften kostengünstig, langlebig und wartungsarm kombinieren und sich dadurch auf dem Markt etablieren konnten. Weitere Entwicklungen und deutliche Verbesserungen wurden ebenfalls in anderen technischen Bereichen wie dem Schall- und Einbruchschutz gemacht. Das Design und die Ästhetik der Fensterkonstruktionen wurde zudem vielfältiger durch das Aufkommen von filigranen Rahmenkonstruktionen in Verbindung mit großen Glasflächen.
„Die beste Art, die Zukunft vorherzusagen, ist sie selbst zu kreieren.“
Fenster sind „super“ und „sicher“ – mindestens
Heutige, in den DACH-Ländern angebotene Fenster, sind technische Hochleistungskonstruktionen. Energieeffiziente Gebäude und Plus-Energie-Gebäude sind allesamt mit sehr leistungsfähigen Fensterkonstruktionen ausgerüstet. Seitens der Kundinnen wird von Fenstern aber auch „einfach“ erwartet, dass sie „super und sicher“ sind. Gängige Erwartungen sind ein guter Wärmeschutz, hohe Schlagregen- und Luftdichtigkeit und generell eine hohe Gebrauchstauglichkeit. Weitere häufig geforderte Leistungsmerkmale sind sehr gute Schalldämmwerte und eine hohe Einbruchhemmung.
Dem gegenüber besteht aber ein Bewusstseins- und auch Wissensdefizit seitens der KundInnen also auch der Produzenten, dass Fenster viel mehr leisten und beispielsweise für die Sicherstellung der Behaglichkeit und das Wohlfühlen der BewohnerInnen der Gebäude stark mitverantwortlich sind. Seit jeher versorgen Fenster die Gebäude ganz selbstverständlich mit Luft und Licht.
Das Vertrauen in unsere Fenster ist hoch – sie lassen sich aber nicht (mehr) beliebig weiterentwickeln. Grenzen bestehen z. B. darin, dass sich die mechanischen Beschlägesysteme – wahre Meisterwerke der Ingenieurskunst – zwar mit elektronischen Komponenten ausrüsten lassen, aber noch nicht wirklich smart und digital sind. Gleiches gilt sinngemäß auch für die Isoliergläser.
Entwicklungsansätze für die Zukunft
Die weiter voranschreitende Digitalisierung und der Klimawandel werden die Entwicklung beeinflussen. Dazu einige mögliche Thesen:
Fenster werden intelligent und selbstständig: Sie werden mit Sensoren und smarten Technologien ausgestattet sein. Sie werden dadurch selbstständig auf sich verändernde Umgebungsbedingungen reagieren und sich anpassen. Der Mensch steht mit seinen Bedürfnissen dabei als Individuum im Zentrum.
Fenster sind Treiber für die Energiewende: Fenster werden das Energiemanagement des Gebäudeparks noch stärker beeinflussen. Es werden neue Materialien und Materialkombinationen, automatische Sonnenschutz- und Beschattungssysteme und transparente Solarzellen zum Einsatz kommen.
Fenster fördern die Gesundheit, die Behaglichkeit und das Sicherheitsempfinden: Zukünftige Fenster stellen sicher, dass jederzeit genügend Tageslicht sowie saubere Luft vorhanden ist und dass die Behaglichkeit hoch ist. Die Fenster bieten Schutz vor Klimaextremen und Einbrechern.
Fenster werden nachhaltig(er): Zukünftige Fenster wurden „teslaisiert“. Sie werden durch Updates (der smarten Komponenten) und Upgrades (durch Tausch von Fensterkomponenten) den sich ändernden Anforderungen angepasst und bleiben „up to date“. Am Gebrauchsende werden die Materialien und Komponenten wiederverwendet.
Neue Fenster, neue Businessmodelle: Die Kompetenzen der Fensterbauer werden sich ausweiten: Beratung, Bau, Einbau, Betrieb und Rückbau stehen als Ganzes im Fokus. Das heutige, auf Produktion und Einbau fokussierte Businessmodell wird abgelöst. Fensterbauer erschließen sich neue Wertschöpfungsfelder. Die Beratung und Projektierung sowie die After-Sales Periode bis hin zum Rückbau werden wichtige Ertragspfeiler im zukünftigen Portfolio der Fensterbauer.
Christoph Rellstab (54)
ist Co-Präsident des schweizerischen Fachverband Fenster- und Fassadenbau FFF und Leiter Höhere Fachschule Holz Biel an der Berner Fachhochschule Architektur, Holz und Bau sowie stv. Leiter Fachbereich Holz an der Berner Fachhochschule Architektur, Holz und Bau.
Fensterentwicklungen in den 1980er-Jahren waren schon auf hohem Niveau.
Foto: Christoph Rellstab
Fensterstand Beginn 1990er-Jahre
Fotos: Wenger Fenster AG / Berner Fachhochschule
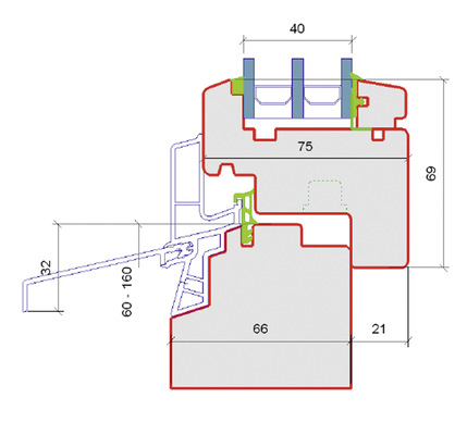
Holzfenster Stand 2012 …
Fotos: Wenger Fenster AG / Berner Fachhochschule
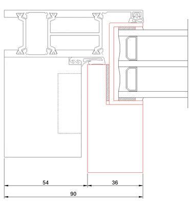
… und Holzfenster Stand 2023.
Fotos: Wenger Fenster AG / Berner Fachhochschule
Wo stehen wir heute? Neue Systeme sind in der Entwicklung – vor allem um die ästhetischen Eigenschaften zu verbessern.
Foto: Pinterest/kjpargeter
Jetzt weiterlesen und profitieren.
+ Glaswelt E-Paper-Ausgabe – jeden Monat neu + Kostenfreien Zugang zu unserem Online-Archiv + Fokus GW: Sonderhefte (PDF) + Webinare und Veranstaltungen mit Rabatten uvm.