Springe auf Hauptinhalt Springe auf Hauptmenü Springe auf SiteSearch

So werden Haustüren dicht – auch ohne Türanschlag

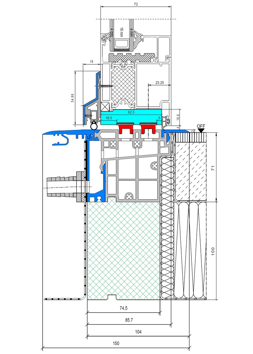
Eine Schlagregendichtheit der Klasse 9A stellt selbst mit Türanschlagdichtungen an Aluminium-Haustüren eine technische Seltenheit dar. Nun hat die Magnet-Nullschwelle ohne Türanschlag diese für Aluminium-Türen seltene Schlagregendichtheitsklasse 9A nach DIN EN 112208 zusammen mit den Aluminiumprofilen Heroal D72 und Schüco ADS75 erreicht.

Die Magnet-Nullschwelle als vorgefertigtes Bauelement enthält unterhalb der Magnet-Dichtungen eine integrierte Entwässerung, die bei einem fachgerechten Einbau u.a. das Einsparpotential von zusätzlichen Rinnen beinhaltet. Durch diese technische Innovation erhalten Architekten und Planer maximale Freiheiten und Flexibilität in der Gestaltung von barrierefreien und ästhetisch fließenden Übergängen zwischen innen und außen.

ALUMAT-Frey

Die Magnet-Nullschwelle als vorgefertigtes Bauelement enthält unterhalb der Magnet-Dichtungen eine integrierte Entwässerung, die bei einem fachgerechten Einbau u.a. das Einsparpotential von zusätzlichen Rinnen beinhaltet. Durch diese technische Innovation erhalten Architekten und Planer maximale Freiheiten und Flexibilität in der Gestaltung von barrierefreien und ästhetisch fließenden Übergängen zwischen innen und außen.

Sogar mehr noch: Ende November letzten Jahres meistert die Nullschwelle zusammen mit Aluminiumprofilen (Wicona Wicstyle 75) sogar die revolutionäre Extraklasse E900. „Mit dieser technischen Höchstleistung bei Aluminium-Außentüren schlägt die Original-Nullschwelle mal wieder alle dagewesenen technischen Rekordmarken,“ freut sich Geschäftsführerin Claudia Rager-Frey.

Bei der höchsten „Normalklasse 9A“ wirkt das Wasser mit 600 Pascal Prüfdruck direkt auf die Nullschwelle ein und bei der Extraklasse E900 mit 900 Pascal. Das bedeutet, dass nun die erste barrierefreie Alu-Haustür ohne Türanschlag nicht nur Schlagregen mit Windstärke 11 (Klasse 9A nach DIN EN 12208), sondern auch Schlagregen mit Windstärke 12 (Klasse E900 nach DIN EN 12208) abhalten kann. Damit ist die Magnet-Nullschwelle auch in Kombination mit Aluminiumprofilen in extremsten Belastungszonen (z.B. Nordseeinseln) offiziell geprüft einsetzbar. Diese höchsten Dichteklassifizierungen wurden mit Türen, die sich nach innen öffnen, erreicht.

Lösung für 2-flüglige Eingangstüren nach außen öffnend

Nach außen öffnende Türen stellen abdichtungstechnisch grundsätzlich eine größere Herausforderung dar, als nach innen öffnende. Die Profile am oberen waagerechten Ende der Türflügel stoßen an die Gegenprofile in der Fassade so, dass oben zwischen diesen beiden Profilen leicht Niederschlagswasser eindringen kann. Diese technische Herausforderung gibt es bei nach innen öffnenden Türen nicht, die Lage der Gegenprofile in der Fassade leitet das Wasser am oberen waagerechen Ende der Türen sofort an der Türoberfläche nach unten. „Doch trotz der technischen Challenge bei nach außen 2-flügligen Türen, werden diese Hauseingangstüren mit barrierefreien Nullschwellen dringend benötigt, insbesondere in öffentlich zugänglichen Gebäuden, z.B. bei Fluchttüren“, weiß Rager-Frey.

Die barrierefreien Übergänge zwischen innen und außen sind in diesen Gebäudearten zumeist vorgeschrieben. „Eine geprüfte Schlagregendichtheit in den höheren Klassen gibt es für diese barrierefreien Hauseingangstüren bis heute noch kaum. Und genau für diesen großen Bedarf hat die Magnet-Nullschwelle eine weitere technische Rekordmarke generiert: In einer 2-flügligen Hauseingangstür hat sie zusammen mit den Schücoprofilen ADS 75 erstmals bei nach außen öffnenden Türflügeln die Schlagregendichtheit der Klasse 7A nach DIN EN 12208 erreicht.“ Mit diesem einmaligen Prüfergebnis werde für Architekten, Planer und Handwerker eine schlagregendicht geprüfte Lösung ermöglicht, die zusätzlich alle bauordnungsrechtlichen und normativen Anforderungen innerhalb des barrierefreien Bauens erfüllt. Zusätzlich bietet Alumat für alle Bauverantwortlichen eine Prüfung der Magnet-Nullschwelle in einbruchhemmenden Türen mit Notausgangs-, Panik- und Komfortfunktion.

Nullschwellen bauordnungsrechtlich und normativ gefordert

Das innovative Gesamtkonzept von ALUMAT für Haustüren ermöglicht neben der schwellenlosen Magnet-Nullschwelle mit einklipsbaren Fußabstreifern einen nachhaltig schwellenfreien, sicheren und demografietauglichen Übergang von der Nullschwelle zu den angrenzenden Böden.

ALUMAT-Frey

Das innovative Gesamtkonzept von ALUMAT für Haustüren ermöglicht neben der schwellenlosen Magnet-Nullschwelle mit einklipsbaren Fußabstreifern einen nachhaltig schwellenfreien, sicheren und demografietauglichen Übergang von der Nullschwelle zu den angrenzenden Böden.

Mit Prüfzeugnissen können Planungssicherheiten ganz einfach nachgewiesen und bauordnungsrechtliche Anforderungen an das barrierefreie Bauen haftungssicher erfüllt werden. Insbesondere im Neubau von Mehrfamilienhäusern, Geschosswohnungsbauten und öffentlich zugänglichen Gebäuden fordern die meisten Bauordnungen auf Länderebene konsequent barrierefreie Hauseingangstüren mit barrierefreien Nullschwellen. Seit der Nullschwellen-Stellungnahme vom DIN e.V. aus dem Jahr 2013 ist klar, dass nur eine niveaugleiche, schwellenlose Ausbildung bei Außentüren, das heißt mit einer Schwellenhöhe von null Zentimetern, barrierefrei ist. Diese Anforderung können nur niveaugleiche und schwellenlose Nullschwellen ohne hinderliche Türanschlagdichtung erfüllen.

Höchste Dichtewerte und eine konsequente Barrierefreiheit nach DIN 18040-1 und -2 für alle Hauseingangstüren, egal ob aus Alu, Holz/Alu, Holz oder Kunststoff, ermöglichen Planungs- und Haftungssicherheiten für alle Bauverantwortlichen.

Ulrike Jocham

Höchste Dichtewerte und eine konsequente Barrierefreiheit nach DIN 18040-1 und -2 für alle Hauseingangstüren, egal ob aus Alu, Holz/Alu, Holz oder Kunststoff, ermöglichen Planungs- und Haftungssicherheiten für alle Bauverantwortlichen.